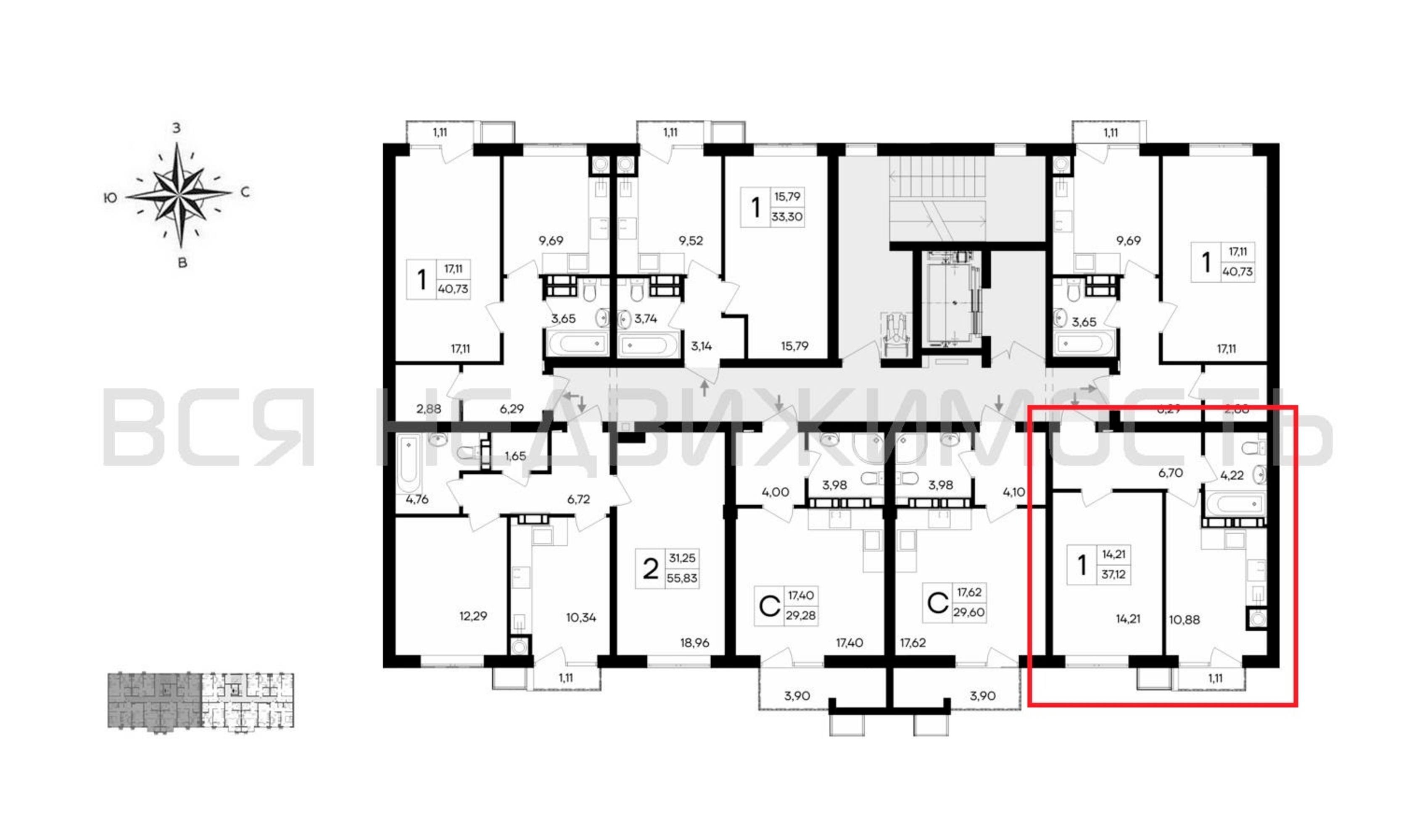
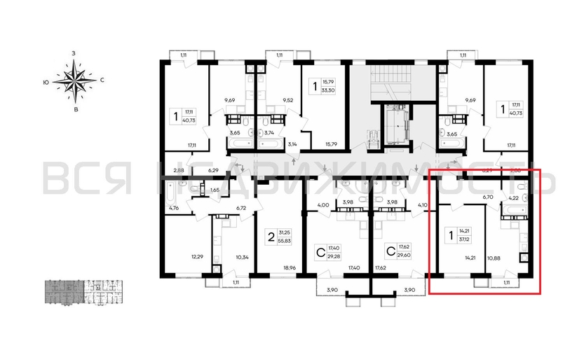
1-комнатная квартира, 37.12 м² 4/8 этаж ID объекта 100113321
пгт. Гвардейское, Курганная ул., д. 31
Инфраструктура поблизости
График стоимости
Базовая цена:
4 302 208 ₽
Семейная ипотека
от 20 635 ₽/мес
Ипотека
от 50 323 ₽/мес
? Расчет цены приблизительный, за более точной информацией обращайтесь к менеджеру
КорпусЭтап 2 позиция 2
Срок сдачи3 кв 2026
Тип домаМонолитно-блочный
Этаж4/8
№ Квартиры22
Тип сделкиПервичная продажа
Общая площадь0.00 м²
Строительная площадь37.12 м²
Жилая площадь14.21 м²
Площадь кухни0.00 м²
Высота потолков2.70 м
ОтделкаЧерновая отделка
СанузелСовмещенный
БалконФранцузский балкон
КладовкаНет
ЛифтДа
Изолированные комнатыДа
Онлайн показДа



