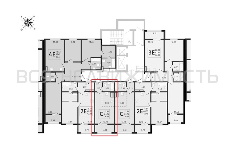
Квартиры-студии, 26.68 м² 8/14 этаж ID объекта 100114373
с. Новая Усмань, Алмазная ул.,
Инфраструктура поблизости
Базовая цена:
2 694 680 ₽
110 347 ₽/м²
Семейная ипотека
от 12 925 ₽/мес
Ипотека
от 31 520 ₽/мес
? Расчет цены приблизительный, за более точной информацией обращайтесь к менеджеру
КорпусПозиция 14
Срок сдачи4 кв 2026
Тип домаПанельный
Этаж8/14
№ Квартиры141
Тип сделкиПервичная продажа
Общая площадь24.42 м²
Строительная площадь26.68 м²
Жилая площадь18.96 м²
Площадь кухни3.00 м²
Высота потолков2.64 м
ОтделкаПредчистовая отделка
СанузелСовмещенный
КладовкаНет
ЛифтДа
Изолированные комнатыДа
Онлайн показДа



