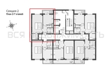
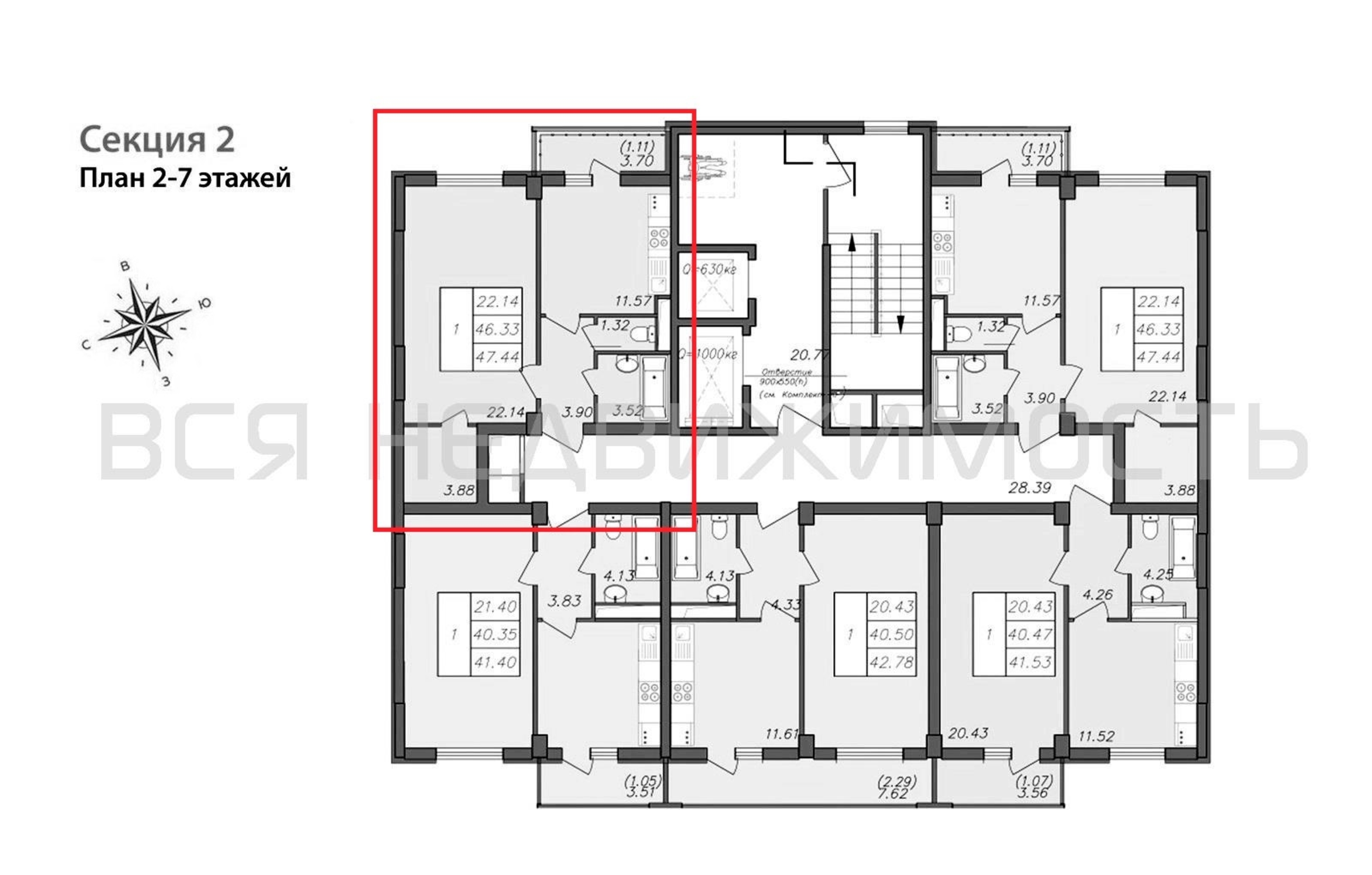
1-комнатная квартира, 47.44 м² 7/13 этаж ID объекта 100118087
Воронеж, Волгоградская ул., д. 45
Инфраструктура поблизости
График стоимости
Базовая цена:
5 698 850 ₽
123 006 ₽/м²
Семейная ипотека
от 27 334 ₽/мес
Ипотека
от 66 660 ₽/мес
? Расчет цены приблизительный, за более точной информацией обращайтесь к менеджеру
КорпусОчередь 2 секции 1-3
Срок сдачи4 кв 2024
Тип домаМонолитно-блочный
Этаж7/13
№ Квартиры132
Тип сделкиПервичная продажа
Общая площадь46.33 м²
Строительная площадь47.44 м²
Жилая площадь22.14 м²
Площадь кухни11.57 м²
Высота потолков2.55 м
ОтделкаЧерновая отделка
СанузелРаздельный
БалконБалкон
КладовкаДа
ЛифтДа
Изолированные комнатыДа
Онлайн показДа



