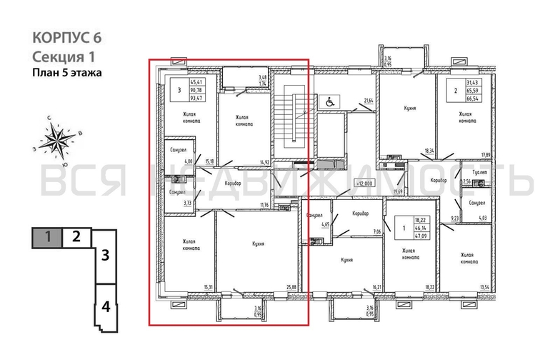
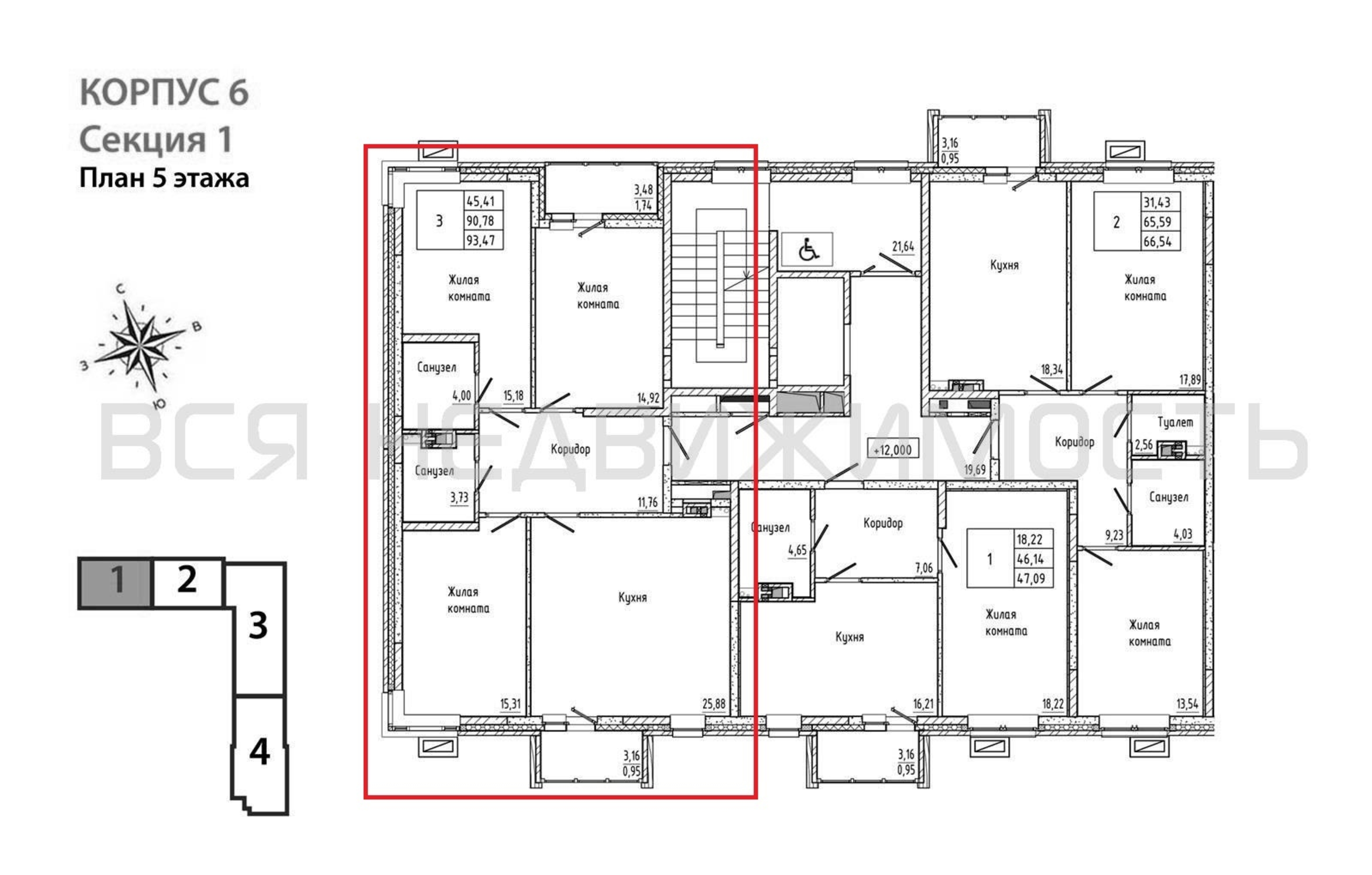
3-комнатная квартира, 93.47 м² 5/8 этаж ID объекта 100118277
п. Солнечный, Кленовая ул., д. 6
Инфраструктура поблизости
Базовая цена:
14 392 511 ₽
158 543 ₽/м²
Семейная ипотека
от 69 032 ₽/мес
Ипотека
от 168 351 ₽/мес
? Расчет цены приблизительный, за более точной информацией обращайтесь к менеджеру
КорпусОчередь 3 Позиция 6
Срок сдачи4 кв 2027
Тип домаКирпичный
Этаж5/8
№ Квартиры15
Тип сделкиПервичная продажа
Общая площадь90.78 м²
Строительная площадь93.47 м²
Жилая площадь45.41 м²
Площадь кухни25.88 м²
Высота потолков2.72 м
ОтделкаПредчистовая отделка
СанузелНесколько
БалконБалкон + лоджия
КладовкаНет
ЛифтДа
Изолированные комнатыДа
Онлайн показДа



