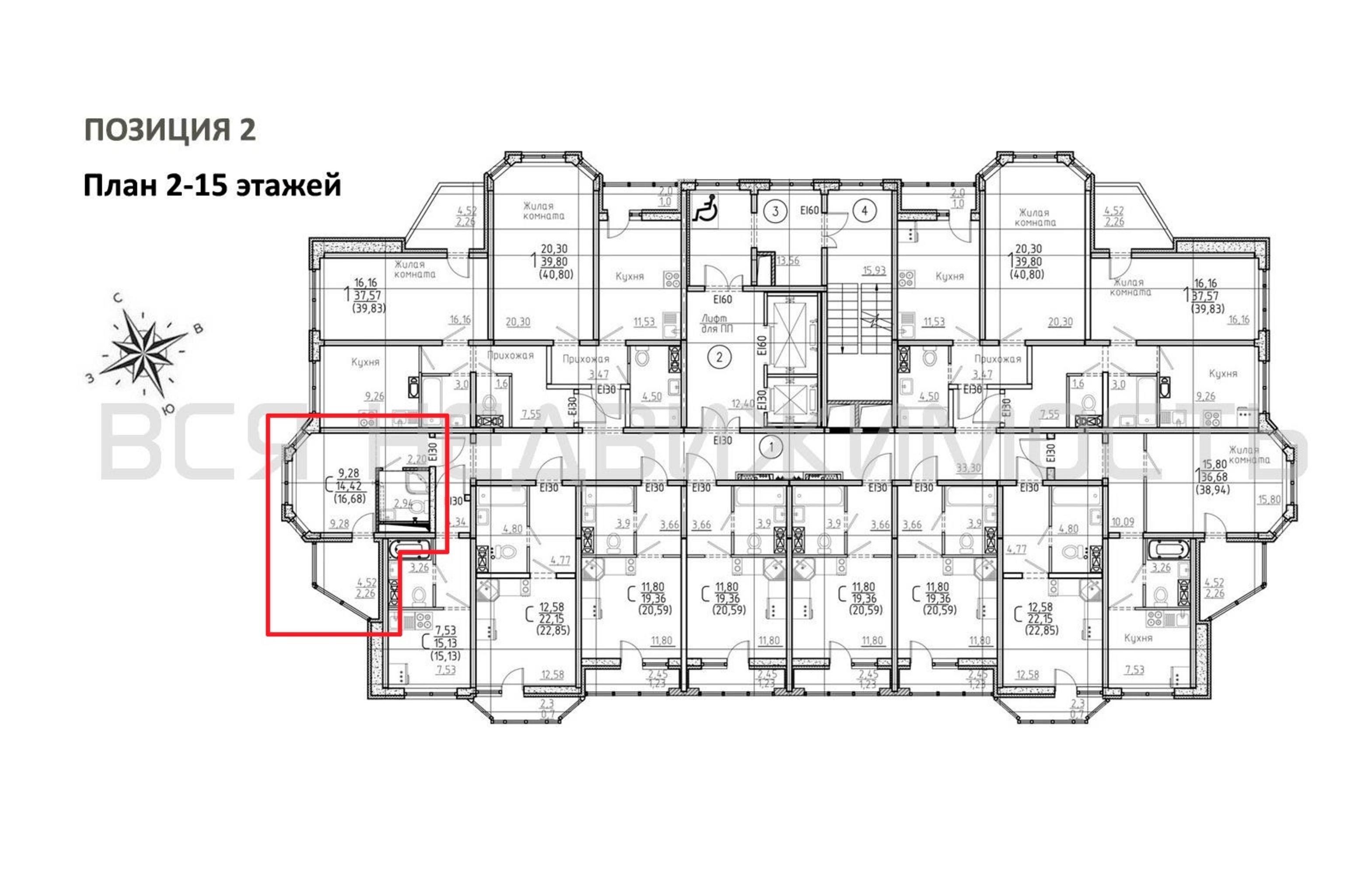
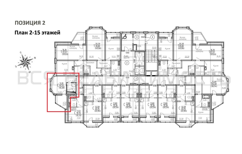
Квартиры-студии, 16.68 м² 2/15 этаж ID объекта 100121289
Воронеж, Ростовская ул., д. 18а
Инфраструктура поблизости
Базовая цена:
2 225 112 ₽
154 307 ₽/м²
Семейная ипотека
от 10 673 ₽/мес
Ипотека
от 26 027 ₽/мес
? Расчет цены приблизительный, за более точной информацией обращайтесь к менеджеру
КорпусЭтап 2 позиция 2
Срок сдачи4 кв 2025
Тип домаМонолитный
Этаж2/15
№ Квартиры232А
Тип сделкиПервичная продажа
Общая площадь14.42 м²
Строительная площадь16.68 м²
Жилая площадь9.28 м²
Площадь кухни2.00 м²
ОтделкаЧерновая отделка
СанузелСовмещенный
КладовкаНет
ЛифтДа
Изолированные комнатыДа
Онлайн показДа



