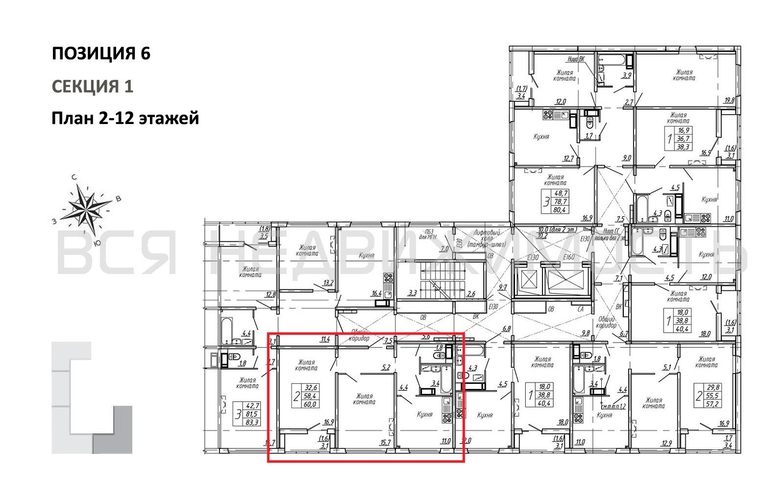
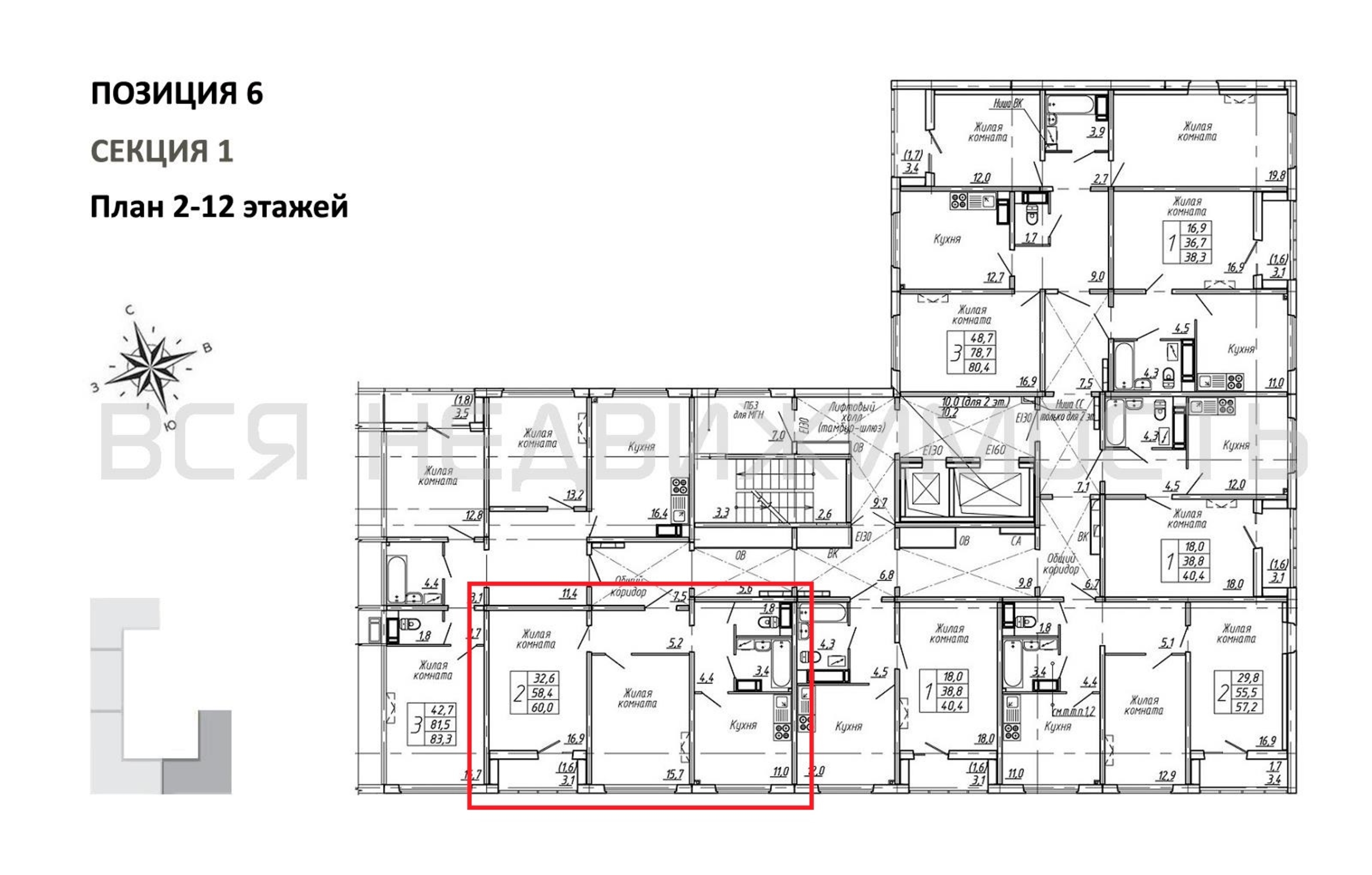
2-комнатная квартира, 60.00 м² 4/13 этаж ID объекта 100122224
Воронеж, Ленинградская ул., д. 27
Инфраструктура поблизости
Цена за наличные:
9 166 920 ₽
156 968 ₽/м²
Базовая цена:
10 647 000 ₽
Семейная ипотека
от 43 968 ₽/мес
Ипотека
от 107 227 ₽/мес
? Расчет цены приблизительный, за более точной информацией обращайтесь к менеджеру
КорпусПозиция 6
Срок сдачи1 кв 2027
Тип домаПанельный
Этаж4/13
№ Квартиры20
Тип сделкиПервичная продажа
Общая площадь58.40 м²
Строительная площадь60.00 м²
Жилая площадь32.60 м²
Площадь кухни11.00 м²
Высота потолков2.80 м
ОтделкаЧистовая отделка
Покрытие полаЛаминат
СанузелРаздельный
КладовкаНет
ЛифтДа
Изолированные комнатыДа
Онлайн показДа



