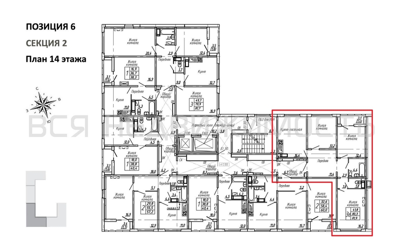
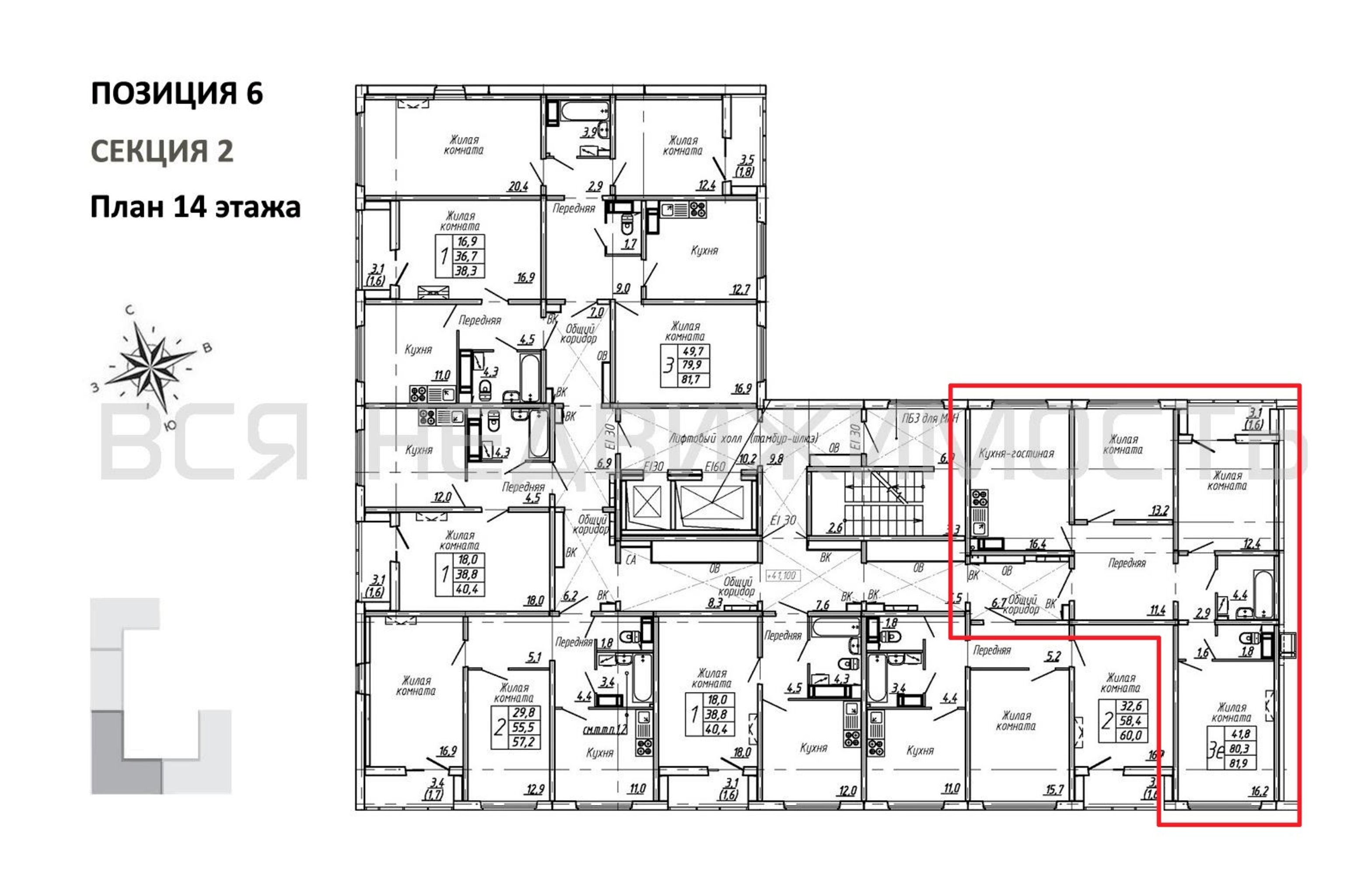
3-комнатная квартира, 81.90 м² 14/15 этаж ID объекта 100122373
Воронеж, Ленинградская ул., д. 27
Инфраструктура поблизости
Цена за наличные:
11 251 766 ₽
140 122 ₽/м²
Базовая цена:
13 071 240 ₽
Семейная ипотека
от 53 968 ₽/мес
Ипотека
от 131 613 ₽/мес
? Расчет цены приблизительный, за более точной информацией обращайтесь к менеджеру
КорпусПозиция 6
Срок сдачи1 кв 2027
Тип домаПанельный
Этаж14/15
№ Квартиры169
Тип сделкиПервичная продажа
Общая площадь80.30 м²
Строительная площадь81.90 м²
Жилая площадь41.80 м²
Площадь кухни16.40 м²
Высота потолков2.80 м
ОтделкаЧистовая отделка
Покрытие полаЛаминат
СанузелРаздельный
КладовкаНет
ЛифтДа
Изолированные комнатыДа
Онлайн показДа



