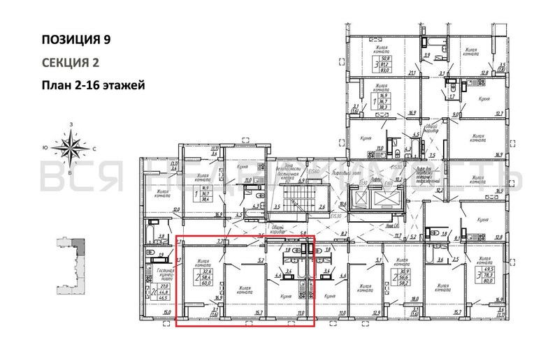
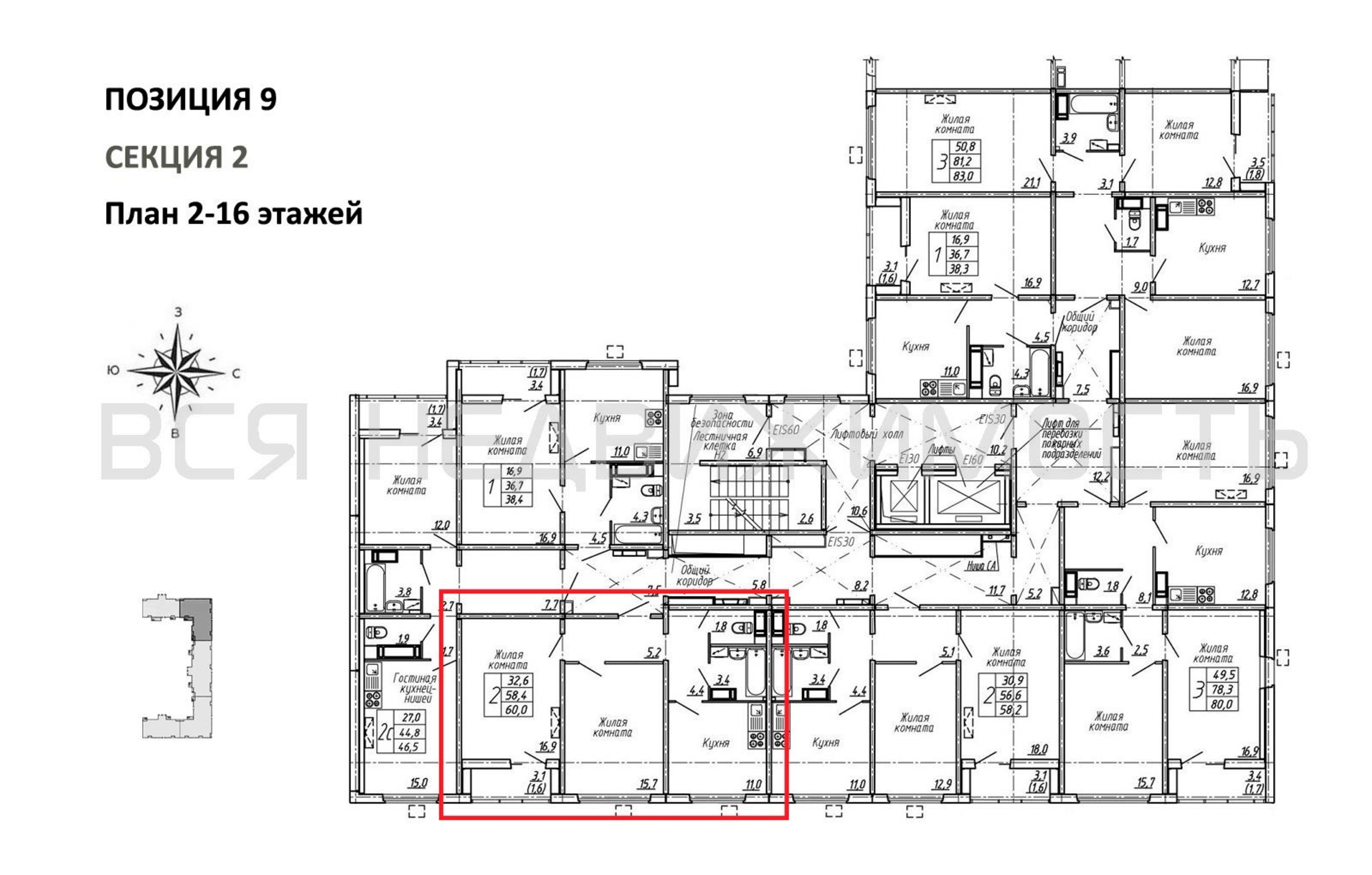
2-комнатная квартира, 60.00 м² 13/17 этаж ID объекта 100123699
Воронеж, Ломоносова ул., д. 129
Инфраструктура поблизости
Цена за наличные:
8 380 020 ₽
143 493 ₽/м²
Базовая цена:
9 732 000 ₽
Семейная ипотека
от 40 194 ₽/мес
Ипотека
от 98 022 ₽/мес
? Расчет цены приблизительный, за более точной информацией обращайтесь к менеджеру
КорпусПозиция 9
Срок сдачи2 кв 2027
Тип домаПанельный
Этаж13/17
№ Квартиры172
Тип сделкиПервичная продажа
Общая площадь58.40 м²
Строительная площадь60.00 м²
Жилая площадь32.60 м²
Площадь кухни11.00 м²
Высота потолков2.60 м
ОтделкаЧистовая отделка
Покрытие полаЛаминат
СанузелРаздельный
КладовкаНет
ЛифтДа
Изолированные комнатыДа
Онлайн показДа



