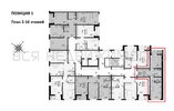
1-комнатная квартира, 46.50 м² 16/16 этаж ID объекта 100124451
Воронеж, Конструкторов ул., д. 29а
Инфраструктура поблизости
Цена за наличные:
7 048 740 ₽
156 988 ₽/м²
Базовая цена:
8 184 000 ₽
Семейная ипотека
от 33 809 ₽/мес
Ипотека
от 82 450 ₽/мес
? Расчет цены приблизительный, за более точной информацией обращайтесь к менеджеру
КорпусЭтап 2 Позиция 1
Срок сдачи4 кв 2027
Тип домаПанельный
Этаж16/16
№ Квартиры100
Тип сделкиПервичная продажа
Общая площадь44.90 м²
Строительная площадь46.50 м²
Жилая площадь12.00 м²
Площадь кухни15.00 м²
Высота потолков3.00 м
ОтделкаЧистовая отделка
Покрытие полаЛаминат
СанузелРаздельный
КладовкаНет
ЛифтДа
Изолированные комнатыДа
Онлайн показДа



