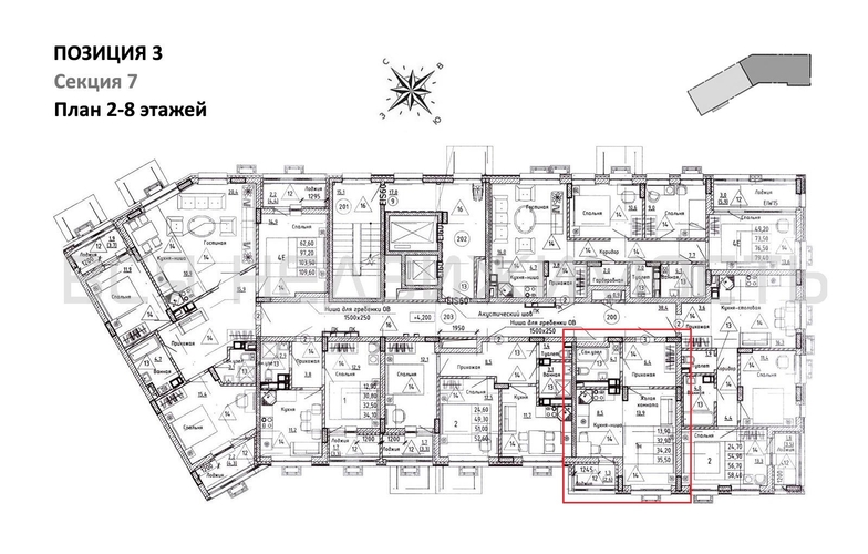
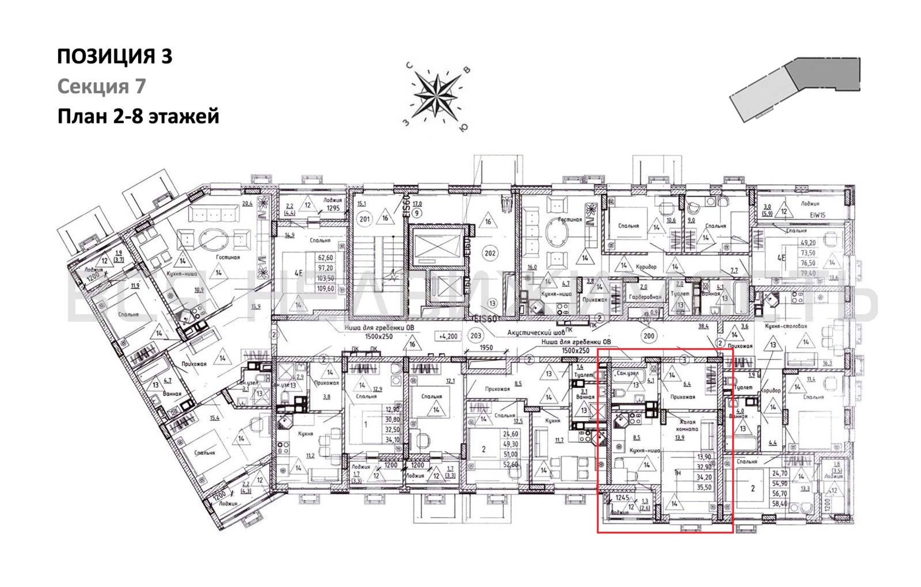
Квартиры-студии, 34.20 м² 4/14 этаж ID объекта 100125747
Воронеж, Остужева ул., д. 52/5
Инфраструктура поблизости
Базовая цена:
4 959 000 ₽
150 729 ₽/м²
Семейная ипотека
от 23 785 ₽/мес
Ипотека
от 58 006 ₽/мес
? Расчет цены приблизительный, за более точной информацией обращайтесь к менеджеру
КорпусЭтап 3 секции 6-7
Срок сдачи3 кв 2028
Тип домаМонолитно-кирпичный
Этаж4/14
№ Квартиры596
Тип сделкиПервичная продажа
Общая площадь32.90 м²
Строительная площадь34.20 м²
Жилая площадь22.40 м²
Площадь кухни2.00 м²
Высота потолков2.74 м
ОтделкаПредчистовая отделка
СанузелСовмещенный
КладовкаНет
ЛифтДа
Изолированные комнатыДа
Онлайн показДа



