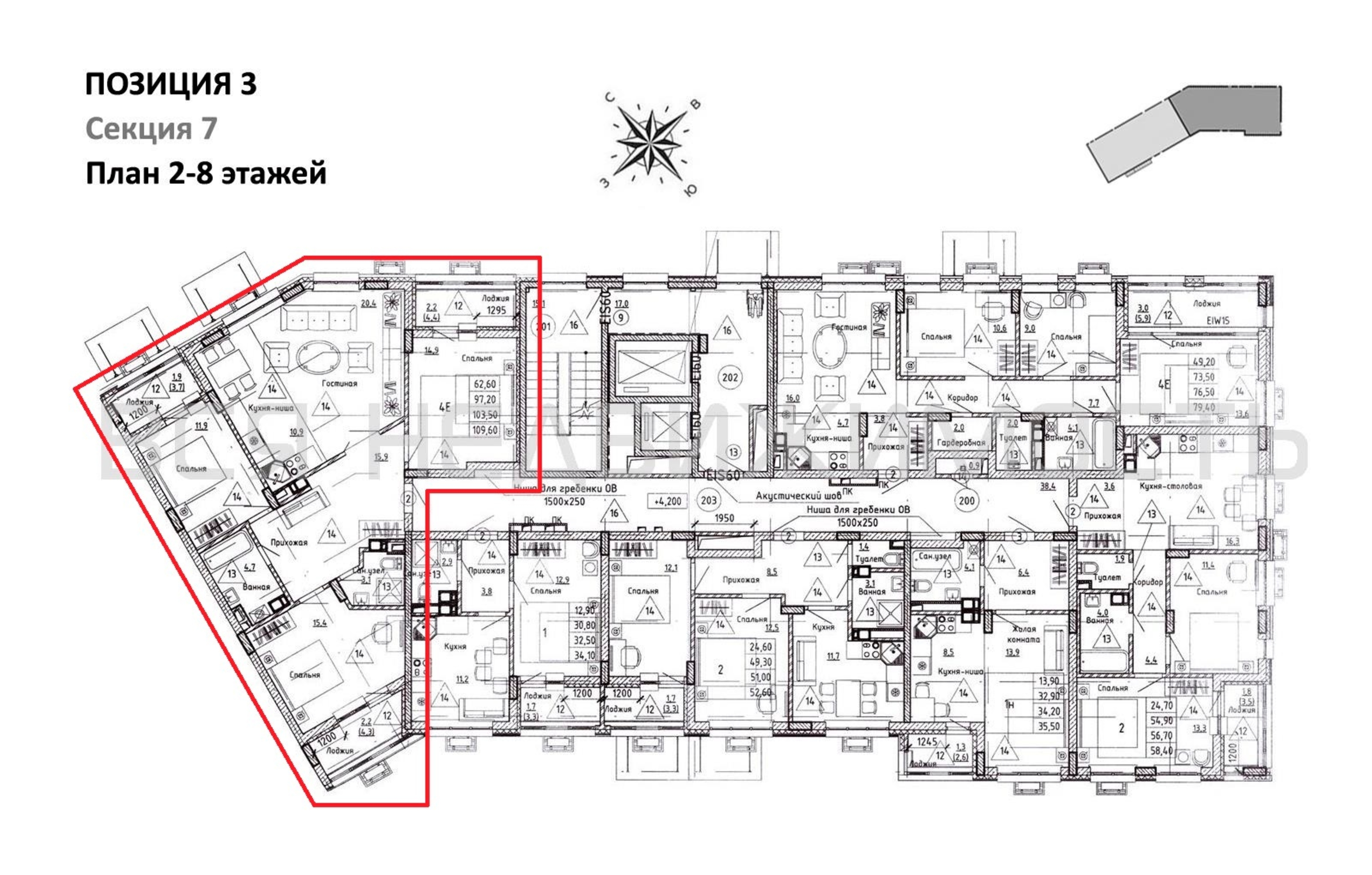
3-комнатная квартира, 103.50 м² 8/14 этаж ID объекта 100125774
Воронеж, Остужева ул., д. 52/5
Инфраструктура поблизости
Базовая цена:
14 179 500 ₽
145 880 ₽/м²
Семейная ипотека
от 68 011 ₽/мес
Ипотека
от 165 859 ₽/мес
? Расчет цены приблизительный, за более точной информацией обращайтесь к менеджеру
КорпусЭтап 3 секции 6-7
Срок сдачи3 кв 2028
Тип домаМонолитно-кирпичный
Этаж8/14
№ Квартиры623
Тип сделкиПервичная продажа
Общая площадь97.20 м²
Строительная площадь103.50 м²
Жилая площадь42.20 м²
Площадь кухни31.30 м²
Высота потолков2.74 м
ОтделкаПредчистовая отделка
СанузелНесколько
Балкон3 лоджии
КладовкаНет
ЛифтДа
Изолированные комнатыДа
Онлайн показДа



