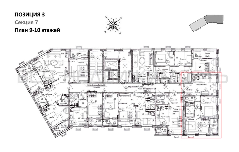
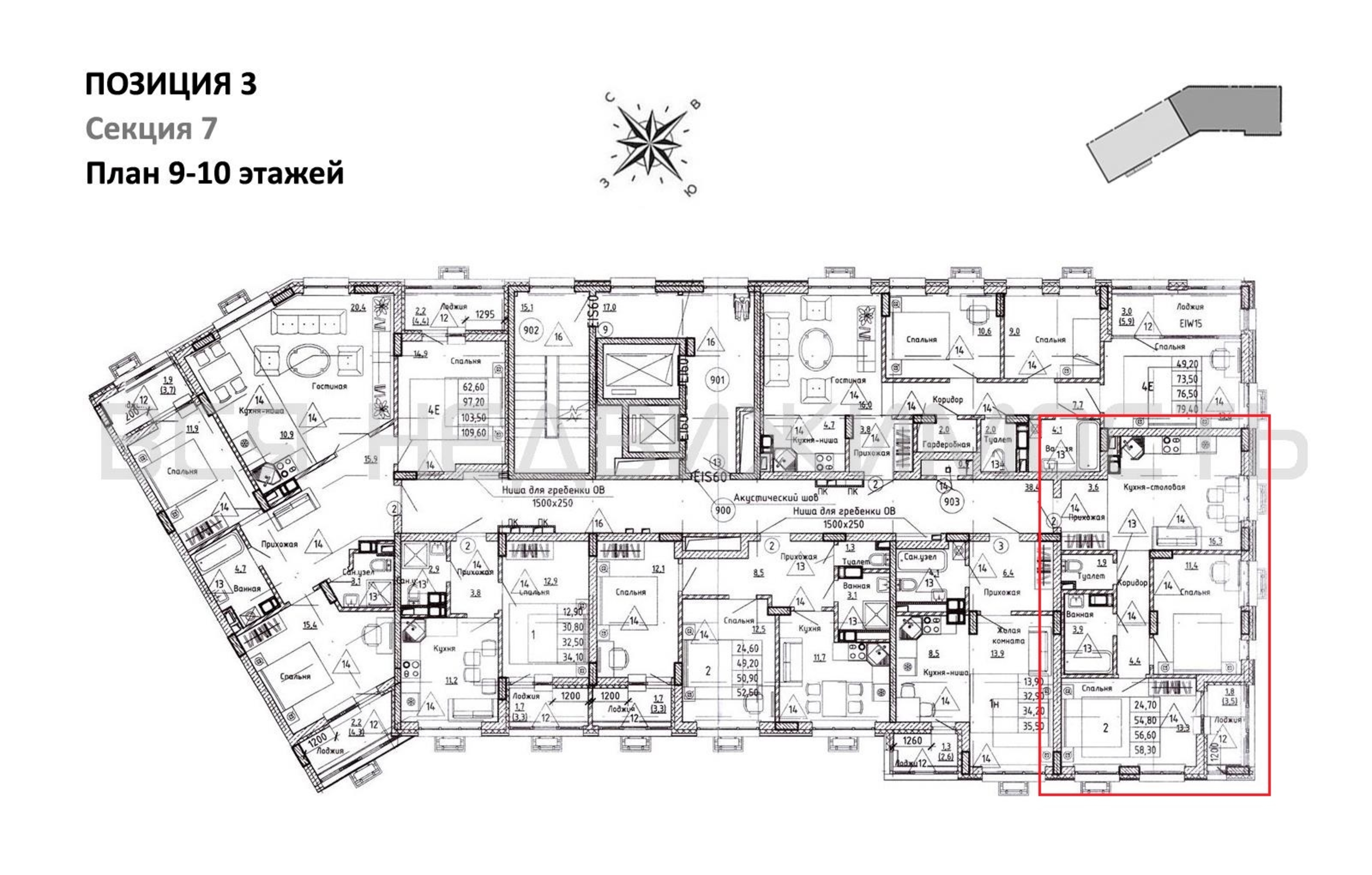
2-комнатная квартира, 56.60 м² 9/14 этаж ID объекта 100125776
Воронеж, Остужева ул., д. 52/5
Инфраструктура поблизости
Базовая цена:
8 207 000 ₽
149 763 ₽/м²
Семейная ипотека
от 39 364 ₽/мес
Ипотека
от 95 998 ₽/мес
? Расчет цены приблизительный, за более точной информацией обращайтесь к менеджеру
КорпусЭтап 3 секции 6-7
Срок сдачи3 кв 2028
Тип домаМонолитно-кирпичный
Этаж9/14
№ Квартиры625
Тип сделкиПервичная продажа
Общая площадь54.80 м²
Строительная площадь56.60 м²
Жилая площадь24.70 м²
Площадь кухни16.30 м²
Высота потолков2.74 м
ОтделкаПредчистовая отделка
СанузелРаздельный
КладовкаНет
ЛифтДа
Изолированные комнатыДа
Онлайн показДа



