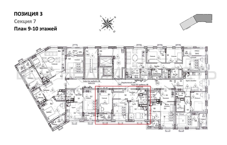
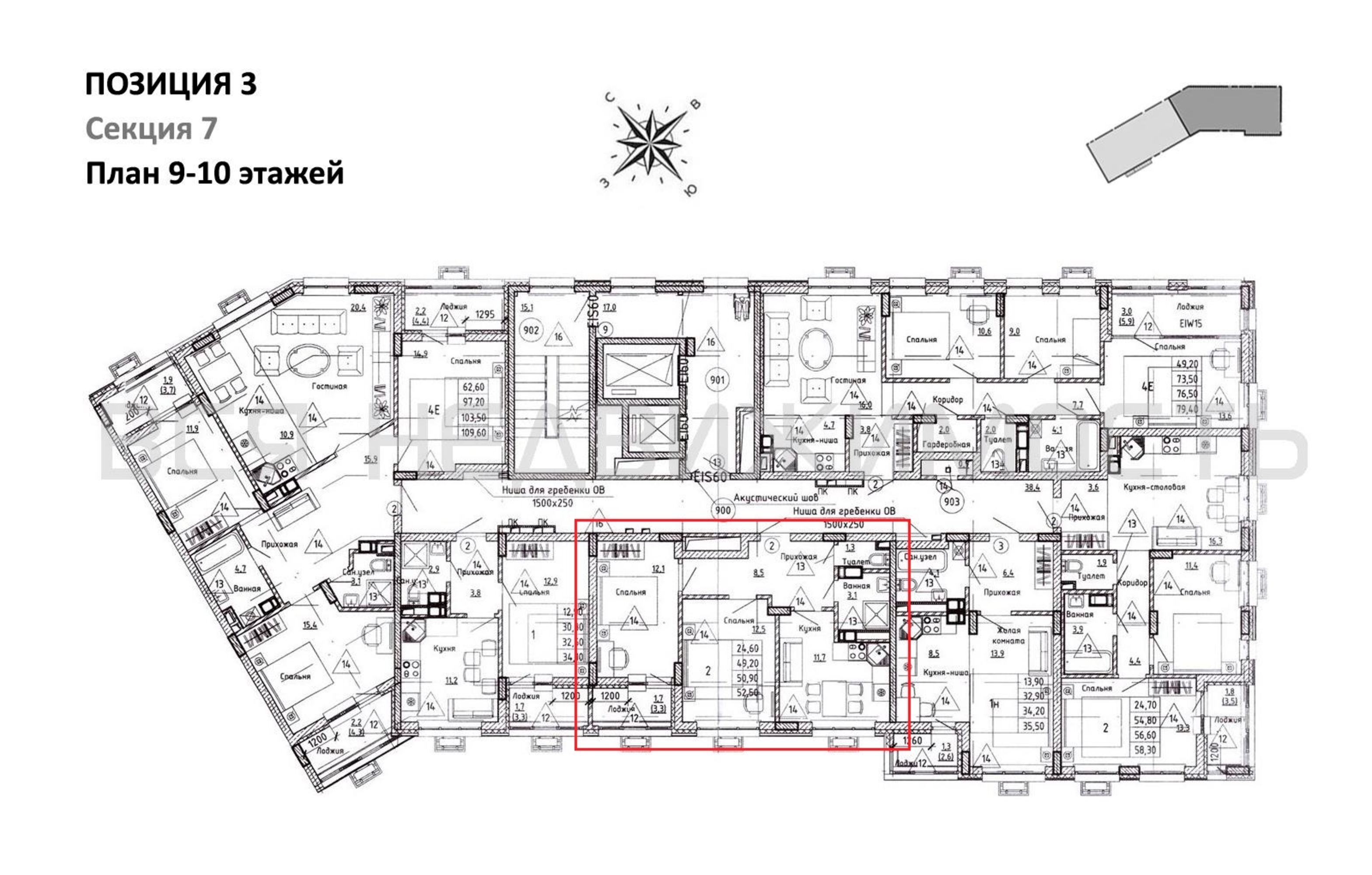
2-комнатная квартира, 50.90 м² 10/14 этаж ID объекта 100125784
Воронеж, Остужева ул., д. 52/5
Инфраструктура поблизости
Базовая цена:
7 380 500 ₽
150 010 ₽/м²
Семейная ипотека
от 35 400 ₽/мес
Ипотека
от 86 331 ₽/мес
? Расчет цены приблизительный, за более точной информацией обращайтесь к менеджеру
КорпусЭтап 3 секции 6-7
Срок сдачи3 кв 2028
Тип домаМонолитно-кирпичный
Этаж10/14
№ Квартиры633
Тип сделкиПервичная продажа
Общая площадь49.20 м²
Строительная площадь50.90 м²
Жилая площадь24.60 м²
Площадь кухни11.70 м²
Высота потолков2.74 м
ОтделкаПредчистовая отделка
СанузелРаздельный
КладовкаНет
ЛифтДа
Изолированные комнатыДа
Онлайн показДа



