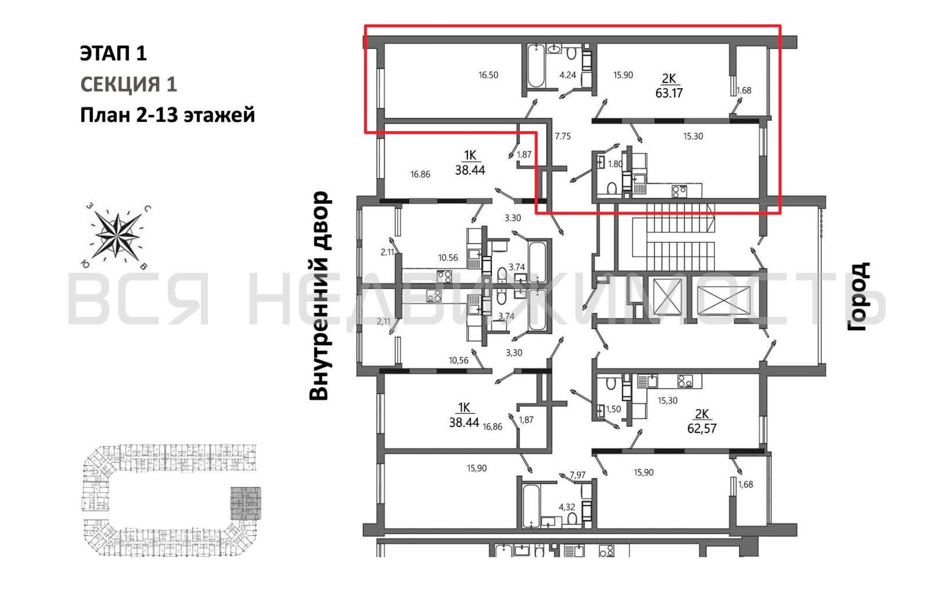
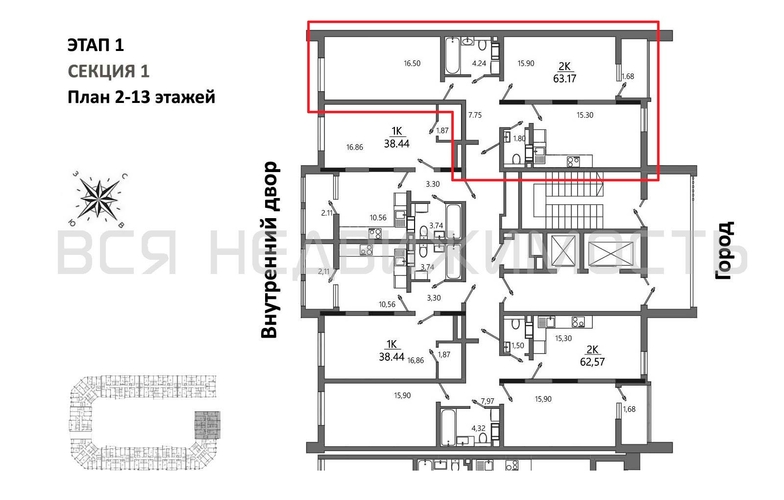
2-комнатная квартира, 63.17 м² 13/13 этаж ID объекта 100127329
Евпатория, имени 60-летия СССР ул., д. 10
Инфраструктура поблизости
Базовая цена:
14 746 022 ₽
239 812 ₽/м²
Семейная ипотека
от 70 728 ₽/мес
Ипотека
от 172 486 ₽/мес
? Расчет цены приблизительный, за более точной информацией обращайтесь к менеджеру
КорпусРивьера этап 1
Срок сдачи1 кв 2025
Тип домаБлочный
Этаж13/13
№ Квартиры51
Тип сделкиПервичная продажа
Общая площадь61.49 м²
Строительная площадь63.17 м²
Жилая площадь32.40 м²
Площадь кухни15.30 м²
Высота потолков2.70 м
ОтделкаПредчистовая отделка
СанузелНесколько
КладовкаНет
ЛифтДа
Изолированные комнатыДа
Онлайн показДа



