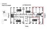
3-комнатная квартира, 93.00 м² 3/25 этаж ID объекта 100129682
Воронеж, Ворошилова ул., д. 19
Инфраструктура поблизости
Базовая цена:
15 000 900 ₽
166 862 ₽/м²
Семейная ипотека
от 71 950 ₽/мес
Ипотека
от 175 467 ₽/мес
? Расчет цены приблизительный, за более точной информацией обращайтесь к менеджеру
Тип сделкиПервичная продажа
Общая площадь89.90 м²
Строительная площадь93.00 м²
Жилая площадь51.10 м²
Площадь кухни15.70 м²
Высота потолков3.30 м
ОтделкаПредчистовая отделка
СанузелНесколько
КладовкаНет
ЛифтДа
Изолированные комнатыДа
Онлайн показДа



