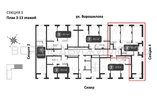
3-комнатная квартира, 93.00 м² 4/25 этаж ID объекта 100129688
Воронеж, Ворошилова ул., д. 19
Инфраструктура поблизости
Базовая цена:
14 907 900 ₽
165 828 ₽/м²
Семейная ипотека
от 71 504 ₽/мес
Ипотека
от 174 380 ₽/мес
? Расчет цены приблизительный, за более точной информацией обращайтесь к менеджеру
Тип сделкиПервичная продажа
Общая площадь89.90 м²
Строительная площадь93.00 м²
Жилая площадь51.10 м²
Площадь кухни15.70 м²
Высота потолков3.30 м
ОтделкаПредчистовая отделка
СанузелНесколько
КладовкаНет
ЛифтДа
Изолированные комнатыДа
Онлайн показДа



