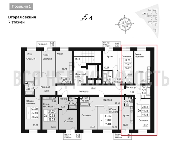
1-комнатная квартира, 49.33 м² 4/10 этаж ID объекта 100136427
п. Солнечный, Кленовая ул., д. 1
Инфраструктура поблизости
Базовая цена:
7 818 805 ₽
156 064 ₽/м²
Семейная ипотека
от 37 502 ₽/мес
Ипотека
от 91 458 ₽/мес
? Расчет цены приблизительный, за более точной информацией обращайтесь к менеджеру
КорпусОчередь 1 Позиция 1
Срок сдачи4 кв 2023
Тип домаМонолитный
Этаж4/10
№ Квартиры161
Тип сделкиПервичная продажа
Общая площадь50.10 м²
Строительная площадь49.33 м²
Жилая площадь17.97 м²
Площадь кухни20.64 м²
Высота потолков2.70 м
ОтделкаПредчистовая отделка
Покрытие полаНет
СанузелСовмещенный
БалконНет
КладовкаНет
ЛифтДа
Изолированные комнатыДа
Онлайн показДа



