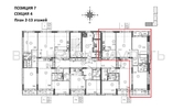
3-комнатная квартира, 79.80 м² 13/13 этаж ID объекта 100136824
Воронеж, Патриотов пр., д. 58а
Инфраструктура поблизости
Цена за наличные:
9 570 322 ₽
125 004 ₽/м²
Базовая цена:
11 962 903 ₽
Семейная ипотека
от 45 903 ₽/мес
Ипотека
от 111 945 ₽/мес
? Расчет цены приблизительный, за более точной информацией обращайтесь к менеджеру
Тип сделкиПервичная продажа
Общая площадь76.56 м²
Строительная площадь79.80 м²
Жилая площадь47.31 м²
Площадь кухни12.18 м²
Высота потолков2.60 м
ОтделкаЧерновая отделка
СанузелНесколько
Балкон2 лоджии
КладовкаНет
ЛифтДа
Изолированные комнатыНет
Онлайн показДа



