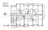
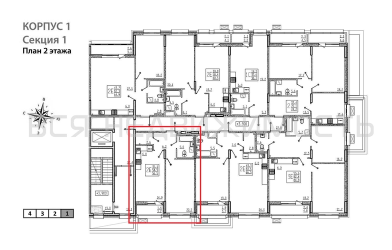
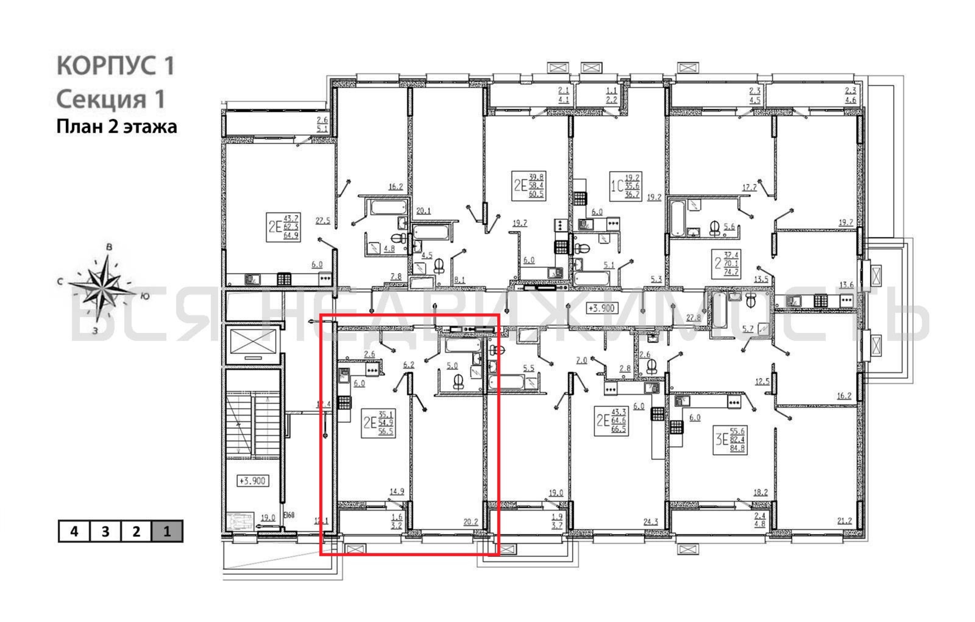
1-комнатная квартира, 56.50 м² 2/9 этаж ID объекта 100137081
Отрадное, Родниковая ул.,
Инфраструктура поблизости
Базовая цена:
5 311 000 ₽
96 740 ₽/м²
Семейная ипотека
от 25 474 ₽/мес
Ипотека
от 62 123 ₽/мес
? Расчет цены приблизительный, за более точной информацией обращайтесь к менеджеру
Тип сделкиПервичная продажа
Общая площадь54.90 м²
Строительная площадь56.50 м²
Жилая площадь20.20 м²
Площадь кухни20.90 м²
Высота потолков2.74 м
ОтделкаПредчистовая отделка
СанузелСовмещенный
КладовкаДа
ЛифтДа
Изолированные комнатыДа
Онлайн показДа



