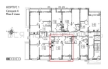
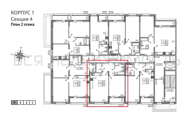
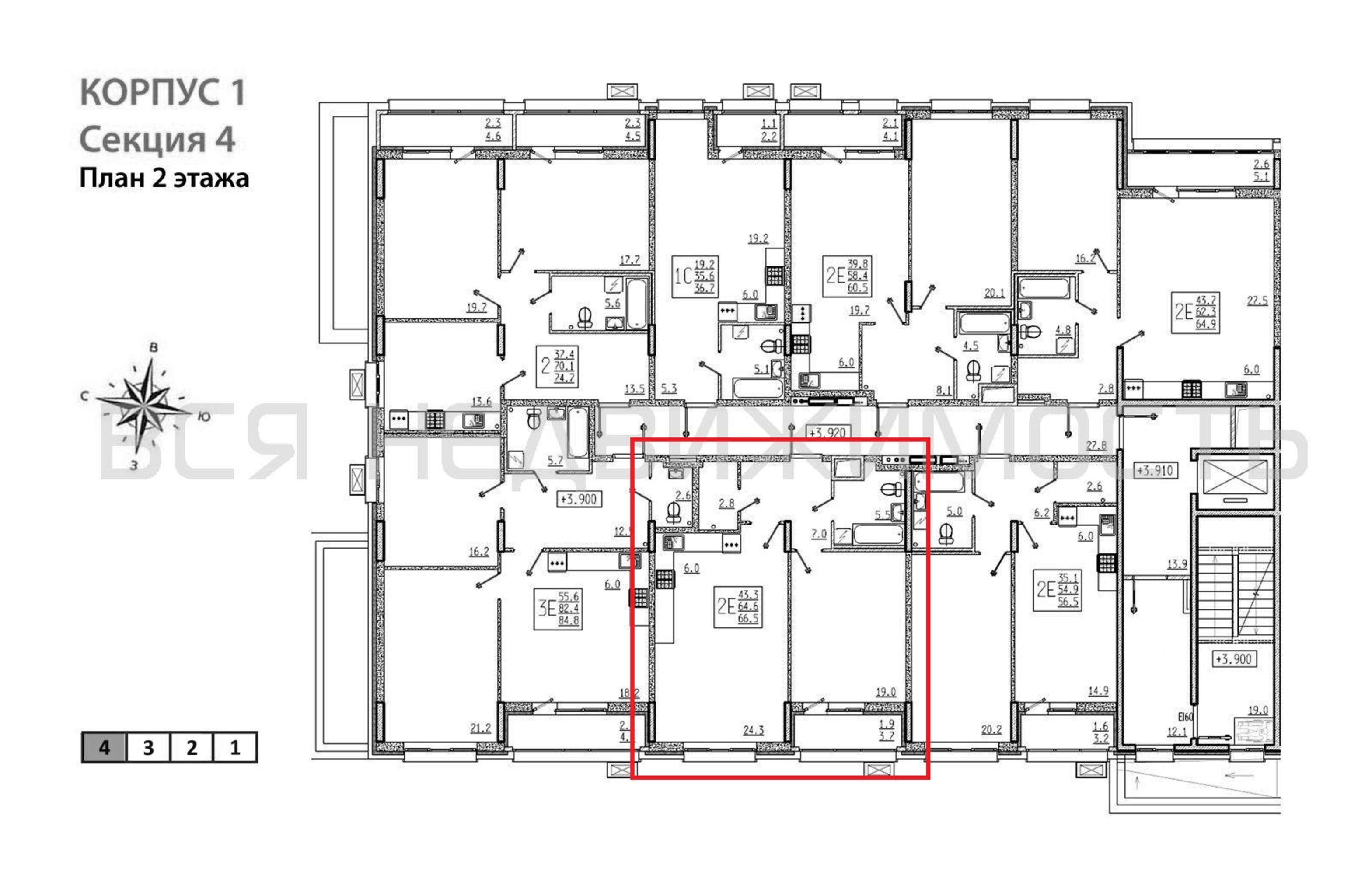
1-комнатная квартира, 66.50 м² 2/9 этаж ID объекта 100137244
Отрадное, Родниковая ул.,
Инфраструктура поблизости
Базовая цена:
6 051 500 ₽
93 676 ₽/м²
Семейная ипотека
от 29 025 ₽/мес
Ипотека
от 70 785 ₽/мес
? Расчет цены приблизительный, за более точной информацией обращайтесь к менеджеру
Тип сделкиПервичная продажа
Общая площадь64.60 м²
Строительная площадь66.50 м²
Жилая площадь19.00 м²
Площадь кухни30.30 м²
Высота потолков2.74 м
ОтделкаПредчистовая отделка
СанузелСовмещенный
КладовкаДа
ЛифтДа
Изолированные комнатыДа
Онлайн показДа



