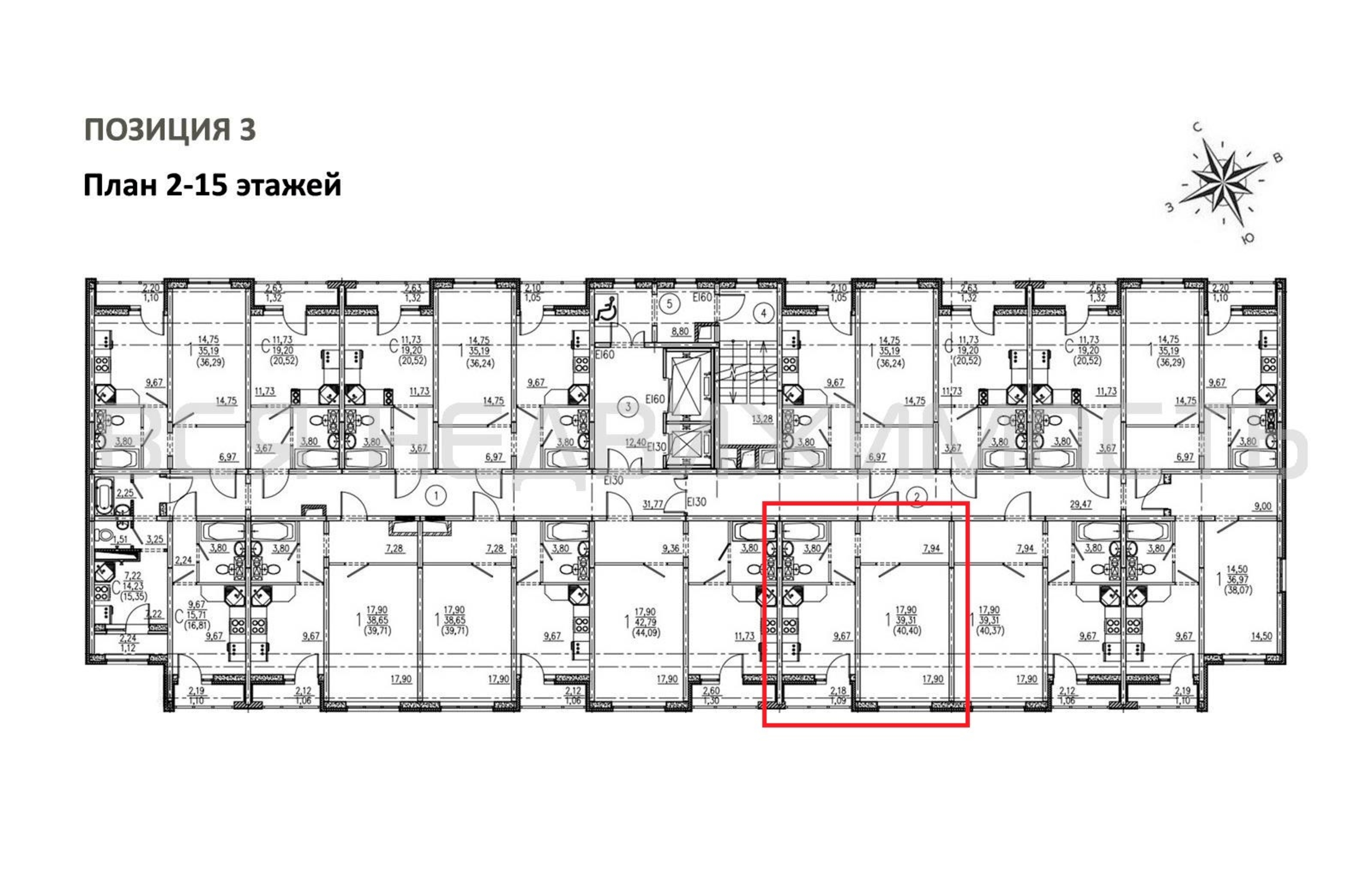
1-комнатная квартира, 40.40 м² 11/15 этаж ID объекта 100058154
Воронеж, Ростовская ул., д. 18а к.1
Инфраструктура поблизости
График стоимости
Базовая цена:
4 605 200 ₽
117 151 ₽/м²
Семейная ипотека
от 22 088 ₽/мес
Ипотека
от 53 868 ₽/мес
? Расчет цены приблизительный, за более точной информацией обращайтесь к менеджеру
КорпусЭтап 1 позиция 3
Срок сдачи3 кв 2025
Тип домаМонолитный
Этаж11/15
№ Квартиры151
Тип сделкиПервичная продажа
Общая площадь39.31 м²
Строительная площадь40.40 м²
Жилая площадь17.90 м²
Площадь кухни9.67 м²
Высота потолков2.80 м
ОтделкаЧерновая отделка
СанузелСовмещенный
КладовкаНет
ЛифтДа
Изолированные комнатыДа
Онлайн показДа



