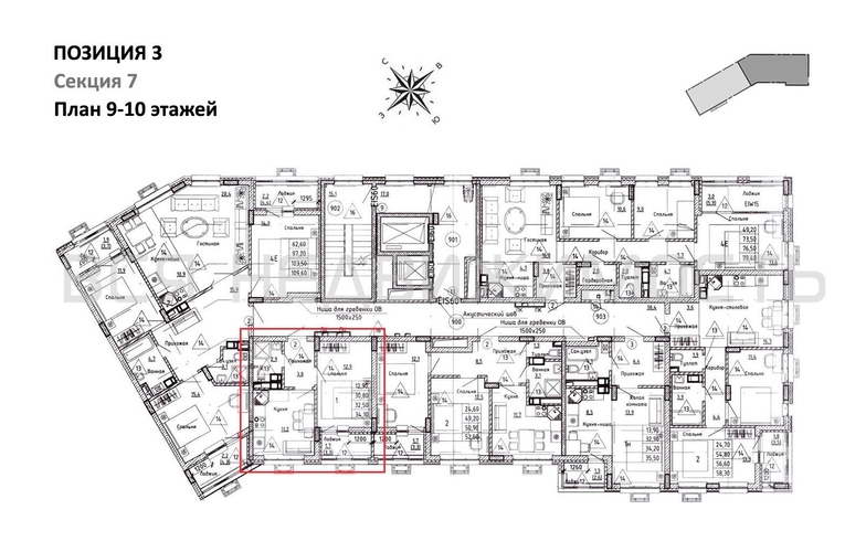
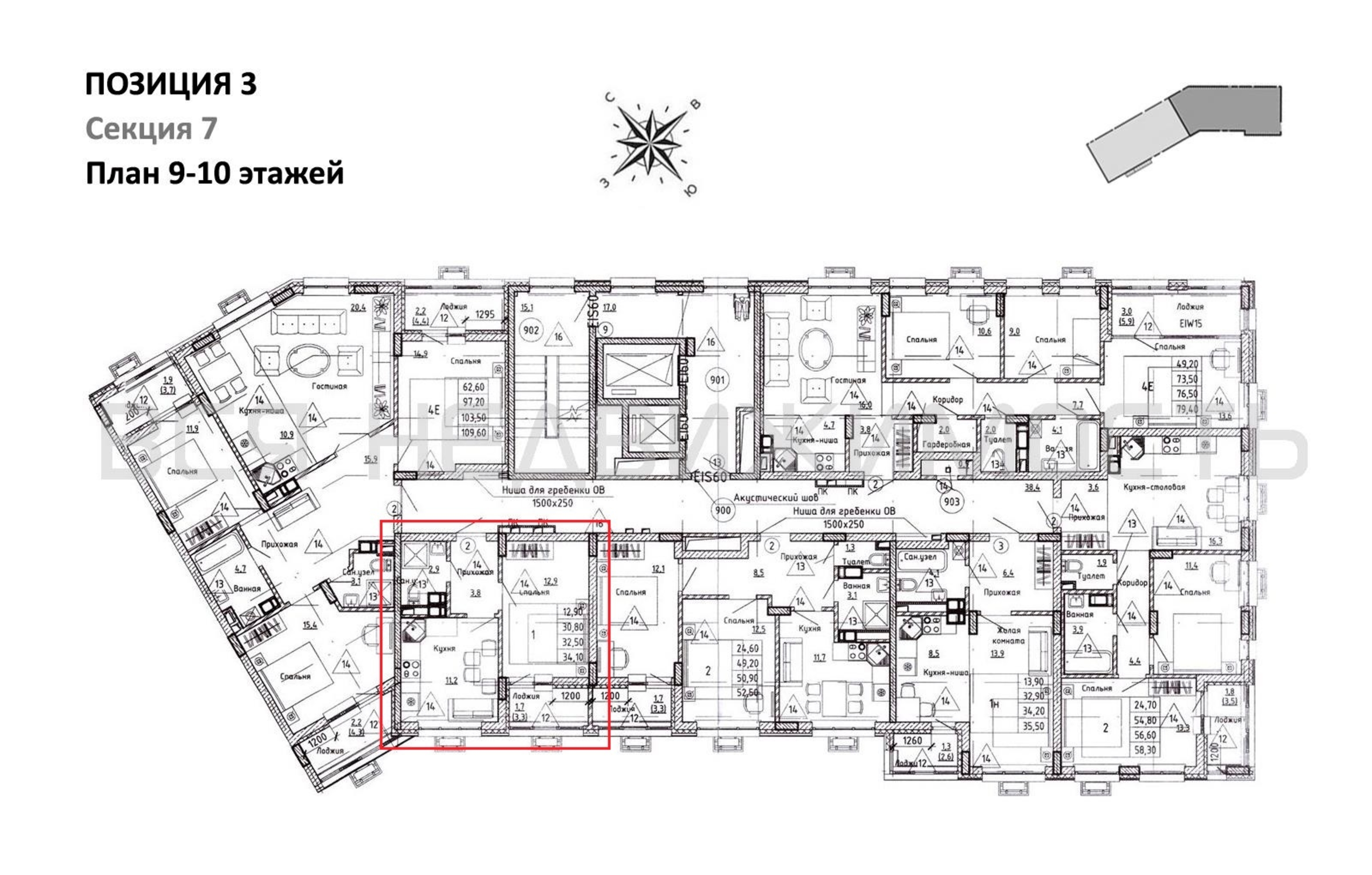
1-комнатная квартира, 32.50 м² 10/14 этаж ID объекта 100125785
Воронеж, Остужева ул., д. 52/5
Инфраструктура поблизости
Базовая цена:
4 712 500 ₽
Семейная ипотека
от 22 603 ₽/мес
Ипотека
от 55 123 ₽/мес
? Расчет цены приблизительный, за более точной информацией обращайтесь к менеджеру
КорпусЭтап 3 секции 6-7
Срок сдачи3 кв 2028
Тип домаМонолитно-кирпичный
Этаж10/14
№ Квартиры634
Тип сделкиПервичная продажа
Общая площадь0.00 м²
Строительная площадь32.50 м²
Жилая площадь12.90 м²
Площадь кухни0.00 м²
Высота потолков2.74 м
ОтделкаПредчистовая отделка
СанузелСовмещенный
КладовкаНет
ЛифтДа
Изолированные комнатыДа
Онлайн показДа



