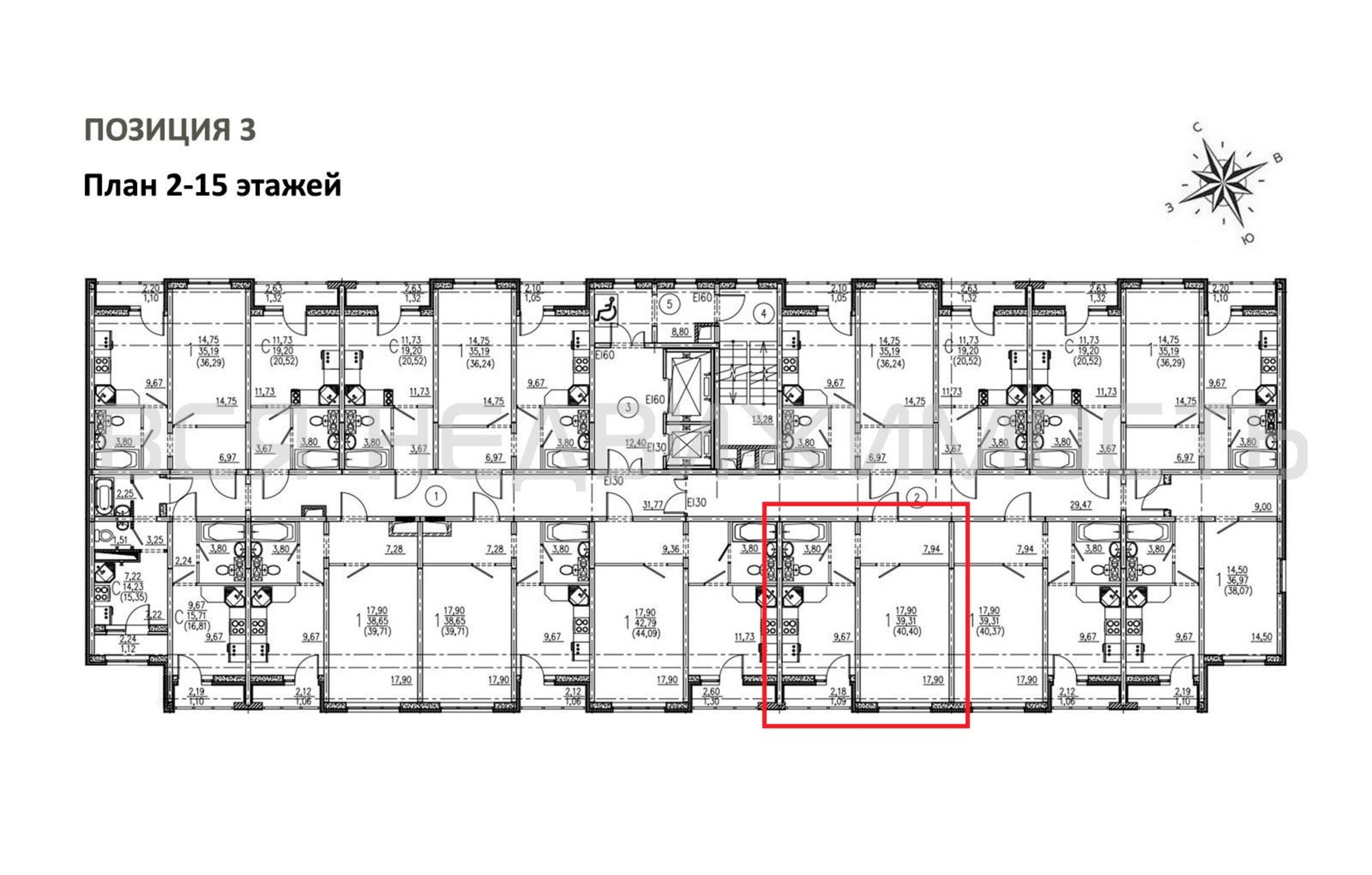
1-комнатная квартира, 40.40 м² 13/15 этаж ID объекта 100058156
Воронеж, Ростовская ул., д. 18а к.1
Инфраструктура поблизости
График стоимости
Базовая цена:
4 593 600 ₽
116 856 ₽/м²
Семейная ипотека
от 22 033 ₽/мес
Ипотека
от 53 732 ₽/мес
? Расчет цены приблизительный, за более точной информацией обращайтесь к менеджеру
КорпусЭтап 1 позиция 3
Срок сдачи3 кв 2025
Тип домаМонолитный
Этаж13/15
№ Квартиры183
Тип сделкиПервичная продажа
Общая площадь39.31 м²
Строительная площадь40.40 м²
Жилая площадь17.90 м²
Площадь кухни9.67 м²
Высота потолков2.80 м
ОтделкаЧерновая отделка
СанузелСовмещенный
КладовкаНет
ЛифтДа
Изолированные комнатыДа
Онлайн показДа



