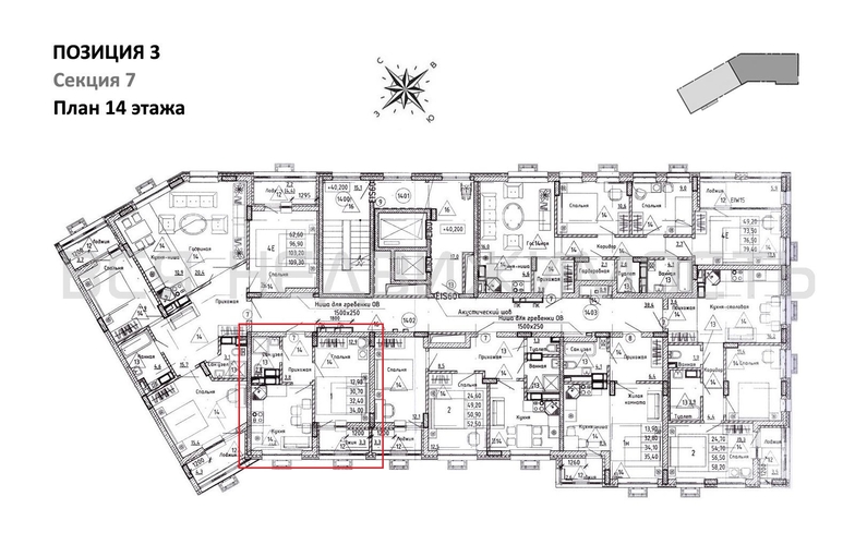
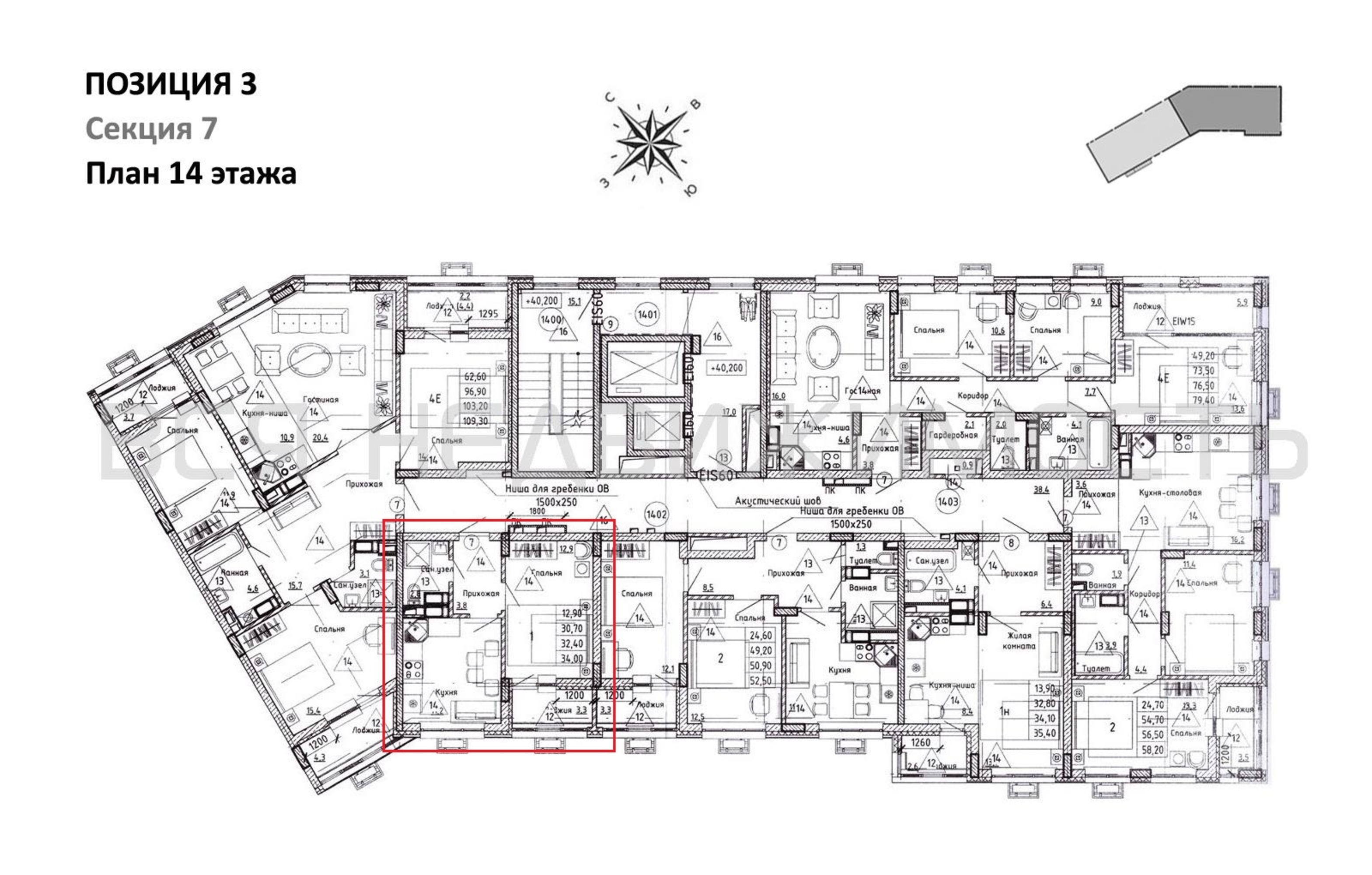
1-комнатная квартира, 32.40 м² 14/14 этаж ID объекта 100125809
Воронеж, Остужева ул., д. 52/5
Инфраструктура поблизости
Базовая цена:
4 698 000 ₽
153 029 ₽/м²
Семейная ипотека
от 22 534 ₽/мес
Ипотека
от 54 953 ₽/мес
? Расчет цены приблизительный, за более точной информацией обращайтесь к менеджеру
КорпусЭтап 3 секции 6-7
Срок сдачи3 кв 2028
Тип домаМонолитно-кирпичный
Этаж14/14
№ Квартиры658
Тип сделкиПервичная продажа
Общая площадь30.70 м²
Строительная площадь32.40 м²
Жилая площадь12.90 м²
Площадь кухни11.20 м²
Высота потолков2.74 м
ОтделкаПредчистовая отделка
СанузелСовмещенный
КладовкаНет
ЛифтДа
Изолированные комнатыДа
Онлайн показДа



