1-комнатная квартира, 48.60 м² 7/17 этаж ID объекта 100102244
Воронеж, Фридриха Энгельса ул., д. 88
Инфраструктура поблизости
График стоимости
Цена за наличные:
13 134 498 ₽
279 695 ₽/м²
Базовая цена:
13 821 840 ₽
Семейная ипотека
от 62 998 ₽/мес
Ипотека
от 153 636 ₽/мес
? Расчет цены приблизительный, за более точной информацией обращайтесь к менеджеру
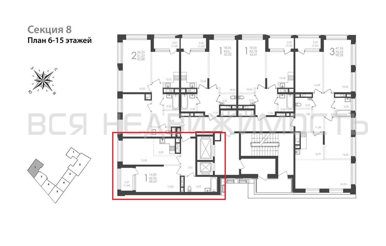
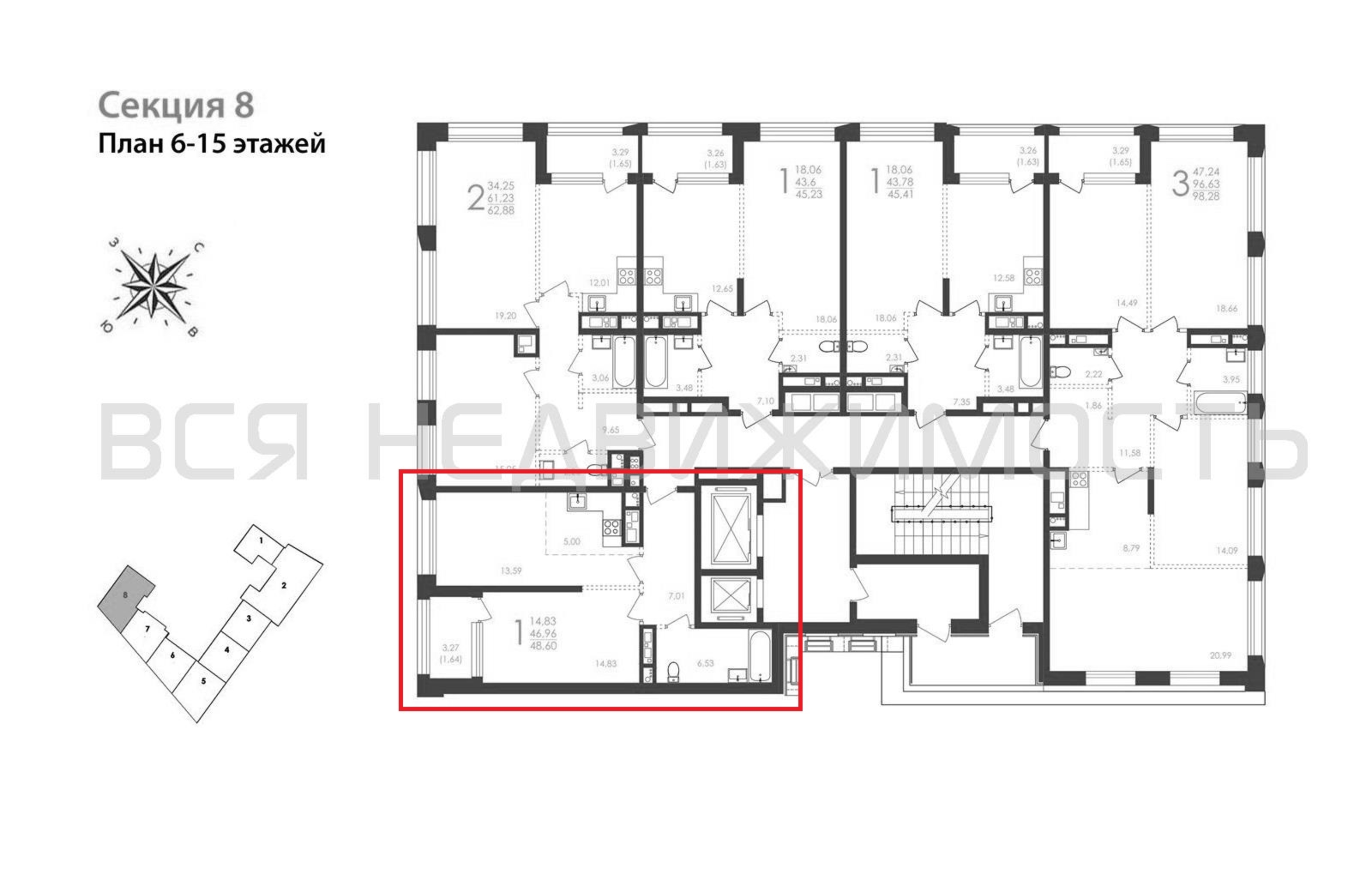
КорпусЖД на Фридриха Энгельса
Срок сдачи4 кв 2027
Тип домаМонолитно-блочный
Этаж7/17
№ Квартиры255
Тип сделкиПервичная продажа
Общая площадь46.96 м²
Строительная площадь48.60 м²
Жилая площадь14.83 м²
Площадь кухни18.59 м²
Высота потолков3.10 м
ОтделкаЧерновая отделка
СанузелСовмещенный
КладовкаНет
ЛифтДа
Изолированные комнатыДа
Свободная планировкаДа
Онлайн показДа



