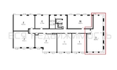
3-комнатная квартира, 82.40 м² 7/14 этаж ID объекта 100098362
Воронеж, Остужева ул., д. 52/5
Инфраструктура поблизости
График стоимости
Базовая цена:
11 124 550 ₽
144 100 ₽/м²
Семейная ипотека
от 53 358 ₽/мес
Ипотека
от 130 125 ₽/мес
? Расчет цены приблизительный, за более точной информацией обращайтесь к менеджеру
КорпусЭтап 2 секции 4-5
Срок сдачи4 кв 2026
Тип домаМонолитно-кирпичный
Этаж7/14
№ Квартиры435
Тип сделкиПервичная продажа
Общая площадь77.20 м²
Строительная площадь82.40 м²
Жилая площадь37.90 м²
Площадь кухни18.20 м²
Высота потолков2.72 м
ОтделкаПредчистовая отделка
СанузелНесколько
Балкон2 лоджии
КладовкаНет
ЛифтДа
Изолированные комнатыДа
Онлайн показДа



