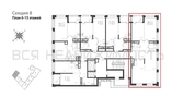
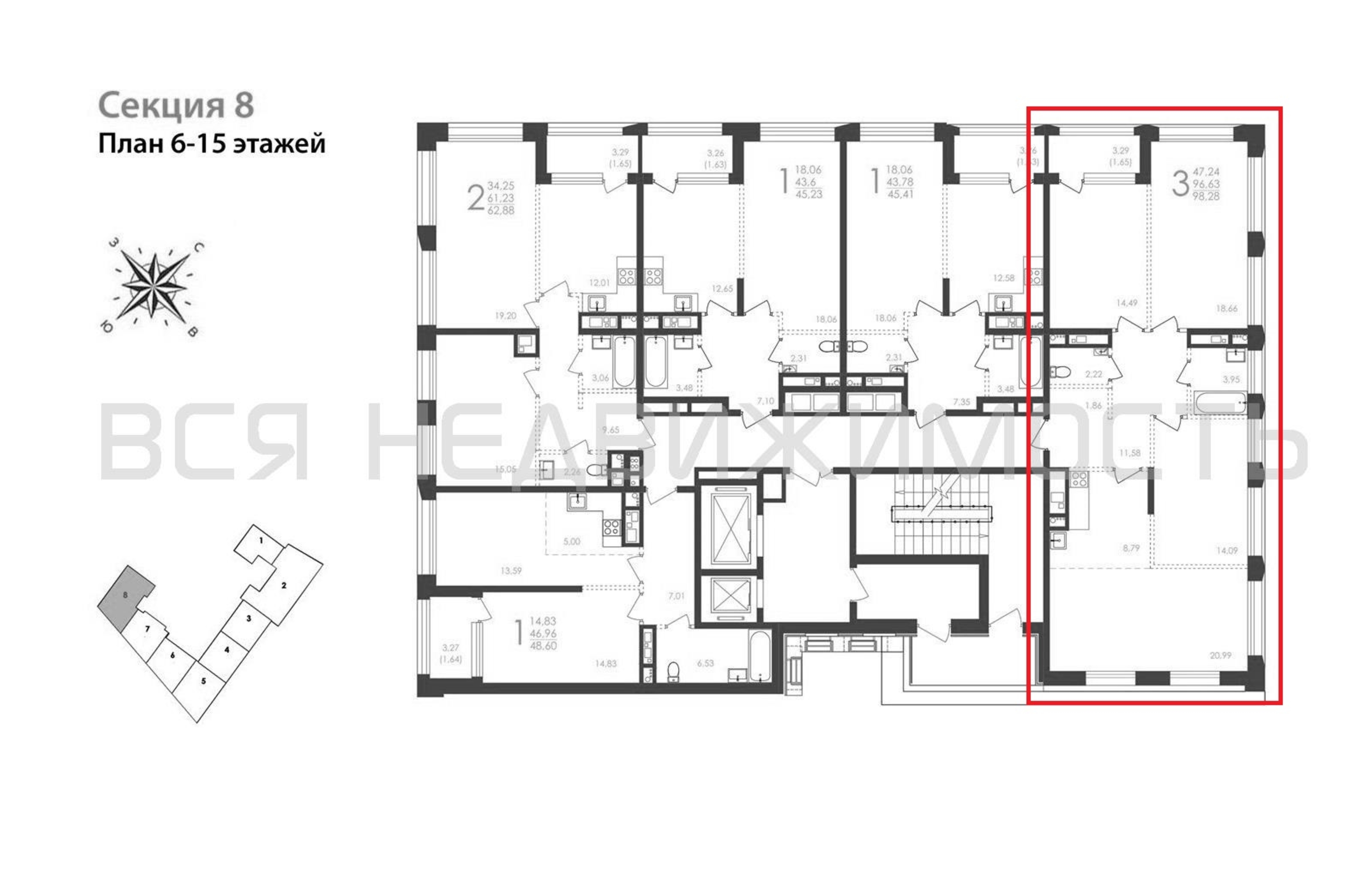
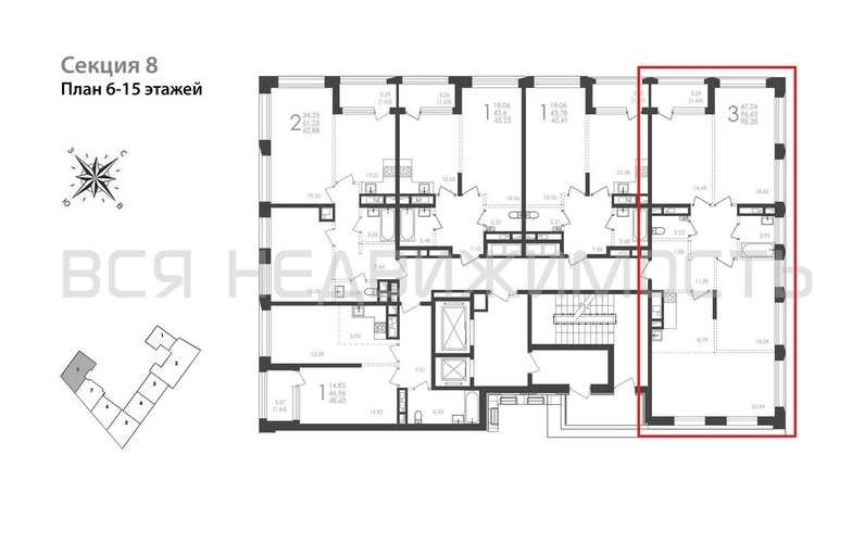
3-комнатная квартира, 98.28 м² 6/17 этаж ID объекта 100102228
Воронеж, Фридриха Энгельса ул., д. 88
Инфраструктура поблизости
График стоимости
Цена за наличные:
25 623 380 ₽
265 170 ₽/м²
Базовая цена:
26 968 032 ₽
Семейная ипотека
от 122 900 ₽/мес
Ипотека
от 299 720 ₽/мес
? Расчет цены приблизительный, за более точной информацией обращайтесь к менеджеру
КорпусЖД на Фридриха Энгельса
Срок сдачи4 кв 2027
Тип домаМонолитно-блочный
Этаж6/17
№ Квартиры254
Тип сделкиПервичная продажа
Общая площадь96.63 м²
Строительная площадь98.28 м²
Жилая площадь47.24 м²
Площадь кухни29.78 м²
Высота потолков3.10 м
ОтделкаЧерновая отделка
СанузелРаздельный
КладовкаНет
ЛифтДа
Изолированные комнатыДа
Свободная планировкаДа
Онлайн показДа



