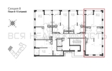
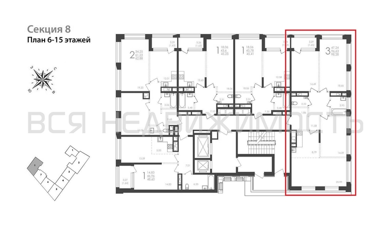
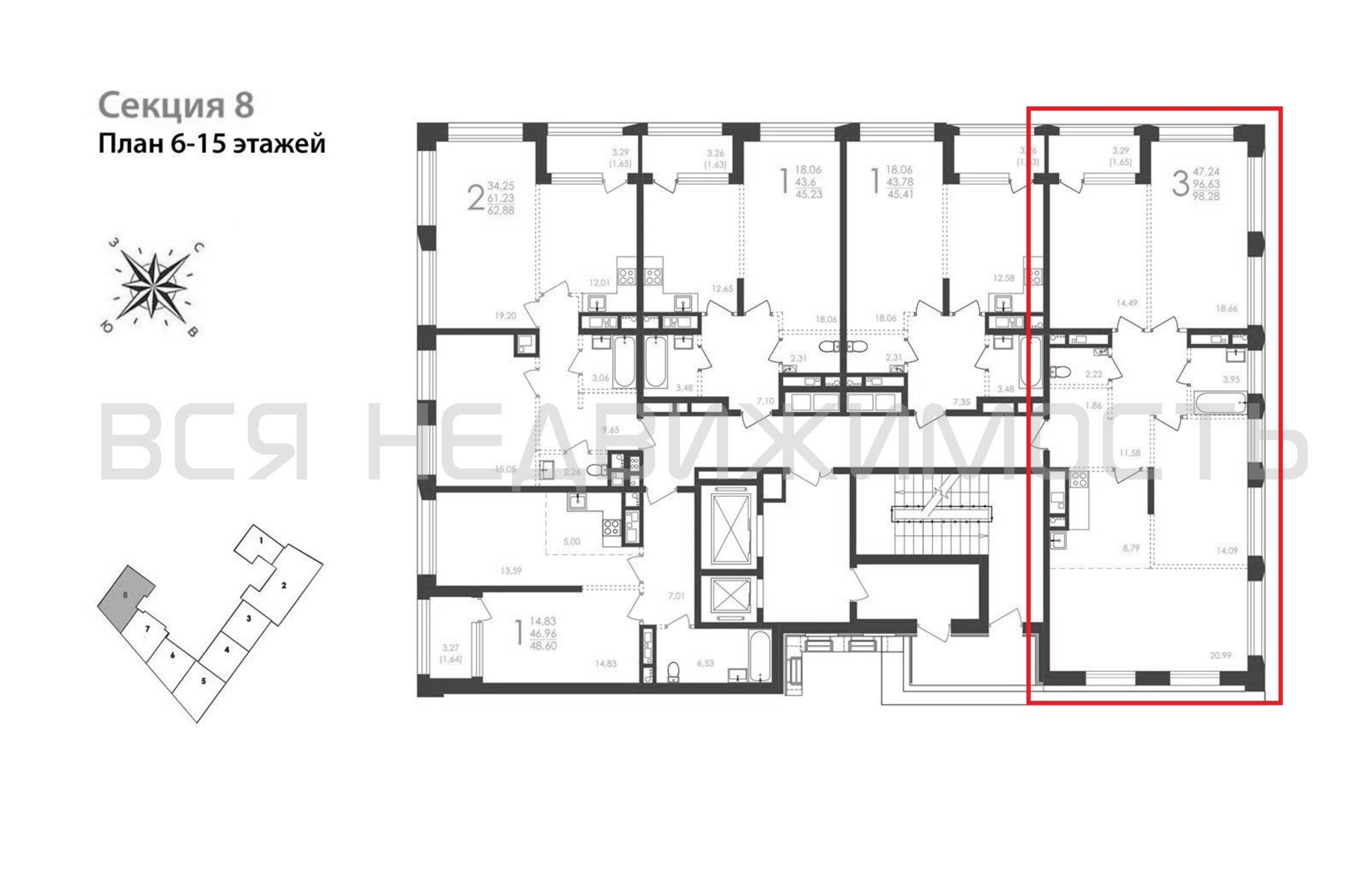
3-комнатная квартира, 98.28 м² 13/17 этаж ID объекта 100102234
Воронеж, Фридриха Энгельса ул., д. 88
Инфраструктура поблизости
График стоимости
Цена за наличные:
23 749 362 ₽
245 776 ₽/м²
Базовая цена:
27 164 592 ₽
Семейная ипотека
от 113 912 ₽/мес
Ипотека
от 277 799 ₽/мес
? Расчет цены приблизительный, за более точной информацией обращайтесь к менеджеру
КорпусЖД на Фридриха Энгельса
Срок сдачи4 кв 2027
Тип домаМонолитно-блочный
Этаж13/17
№ Квартиры289
Тип сделкиПервичная продажа
Общая площадь96.63 м²
Строительная площадь98.28 м²
Жилая площадь47.24 м²
Площадь кухни29.78 м²
Высота потолков3.10 м
ОтделкаЧерновая отделка
СанузелРаздельный
КладовкаНет
ЛифтДа
Изолированные комнатыДа
Свободная планировкаДа
Онлайн показДа



