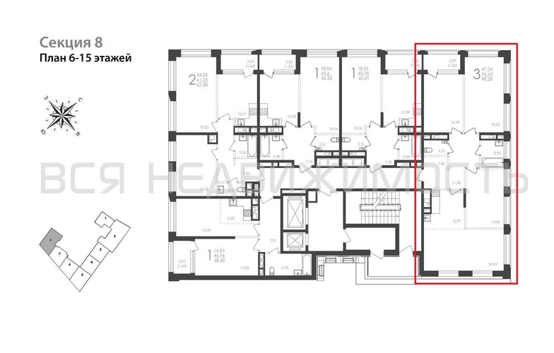
3-комнатная квартира, 98.28 м² 9/17 этаж ID объекта 100102231
Воронеж, Фридриха Энгельса ул., д. 88
Инфраструктура поблизости
График стоимости
Цена за наличные:
25 716 746 ₽
266 136 ₽/м²
Базовая цена:
27 066 312 ₽
Семейная ипотека
от 123 348 ₽/мес
Ипотека
от 300 812 ₽/мес
? Расчет цены приблизительный, за более точной информацией обращайтесь к менеджеру
КорпусЖД на Фридриха Энгельса
Срок сдачи4 кв 2027
Тип домаМонолитно-блочный
Этаж9/17
№ Квартиры269
Тип сделкиПервичная продажа
Общая площадь96.63 м²
Строительная площадь98.28 м²
Жилая площадь47.24 м²
Площадь кухни29.78 м²
Высота потолков3.10 м
ОтделкаЧерновая отделка
СанузелРаздельный
КладовкаНет
ЛифтДа
Изолированные комнатыДа
Свободная планировкаДа
Онлайн показДа



