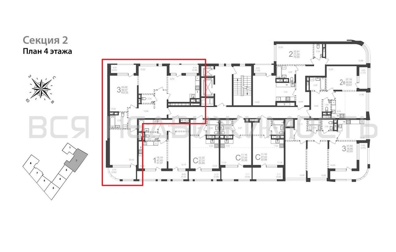
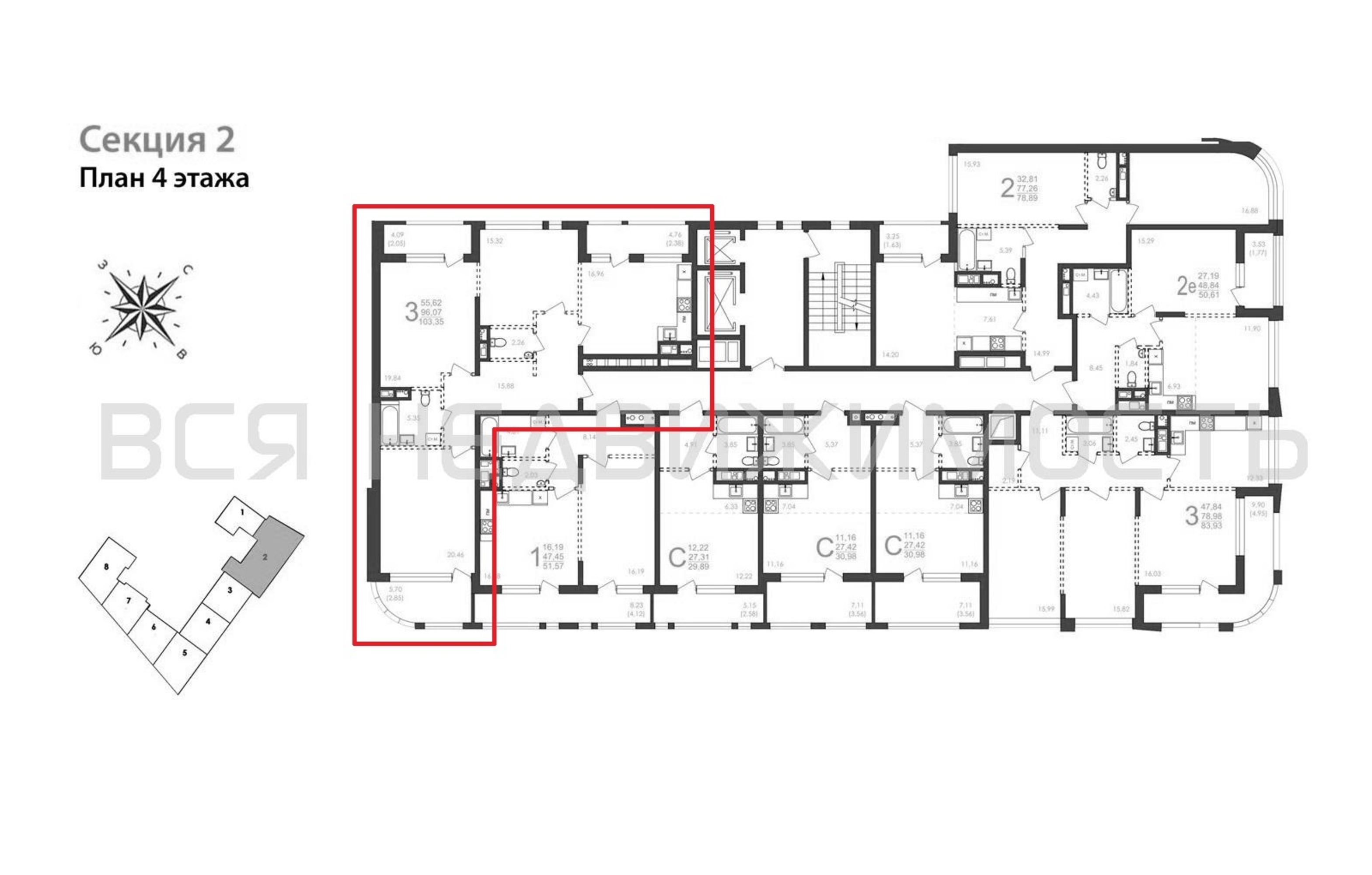
3-комнатная квартира, 103.35 м² 4/7 этаж ID объекта 100102294
Воронеж, Фридриха Энгельса ул., д. 88
Инфраструктура поблизости
График стоимости
Цена за наличные:
26 650 481 ₽
277 407 ₽/м²
Базовая цена:
28 049 190 ₽
Семейная ипотека
от 127 826 ₽/мес
Ипотека
от 311 734 ₽/мес
? Расчет цены приблизительный, за более точной информацией обращайтесь к менеджеру
КорпусЖД на Фридриха Энгельса
Срок сдачи4 кв 2027
Тип домаМонолитно-блочный
Этаж4/7
№ Квартиры57
Тип сделкиПервичная продажа
Общая площадь96.07 м²
Строительная площадь103.35 м²
Жилая площадь55.62 м²
Площадь кухни16.96 м²
Высота потолков3.10 м
ОтделкаЧерновая отделка
СанузелНесколько
Балкон3 лоджии
КладовкаНет
ЛифтДа
Изолированные комнатыДа
Свободная планировкаДа
Онлайн показДа



