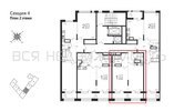
1-комнатная квартира, 48.84 м² 2/8 этаж ID объекта 100102478
Воронеж, Фридриха Энгельса ул., д. 88
Инфраструктура поблизости
График стоимости
Цена за наличные:
13 060 147 ₽
288 176 ₽/м²
Базовая цена:
13 743 576 ₽
Семейная ипотека
от 62 642 ₽/мес
Ипотека
от 152 766 ₽/мес
? Расчет цены приблизительный, за более точной информацией обращайтесь к менеджеру
КорпусЖД на Фридриха Энгельса
Срок сдачи4 кв 2027
Тип домаМонолитно-блочный
Этаж2/8
№ Квартиры105
Тип сделкиПервичная продажа
Общая площадь45.32 м²
Строительная площадь48.84 м²
Жилая площадь16.10 м²
Площадь кухни18.11 м²
Высота потолков3.10 м
ОтделкаЧерновая отделка
СанузелРаздельный
КладовкаНет
ЛифтДа
Изолированные комнатыДа
Свободная планировкаДа
Онлайн показДа



