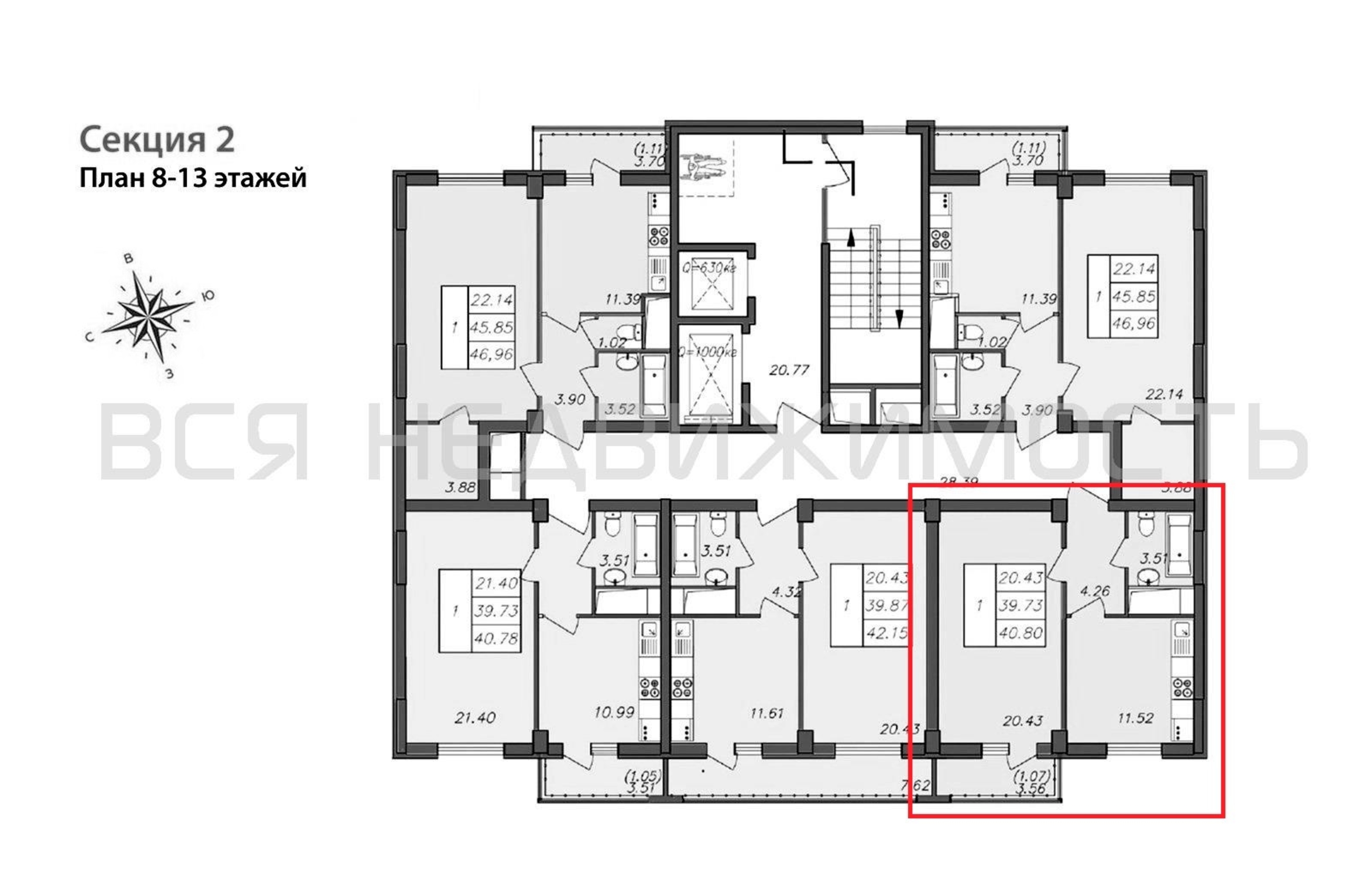
1-комнатная квартира, 40.80 м² 13/13 этаж ID объекта 100118114
Воронеж, Волгоградская ул., д. 45
Инфраструктура поблизости
График стоимости
Базовая цена:
4 902 450 ₽
123 425 ₽/м²
Семейная ипотека
от 23 514 ₽/мес
Ипотека
от 57 345 ₽/мес
? Расчет цены приблизительный, за более точной информацией обращайтесь к менеджеру
КорпусОчередь 2 секции 1-3
Срок сдачи4 кв 2024
Тип домаМонолитно-блочный
Этаж13/13
№ Квартиры159
Тип сделкиПервичная продажа
Общая площадь39.72 м²
Строительная площадь40.80 м²
Жилая площадь20.43 м²
Площадь кухни11.52 м²
Высота потолков2.55 м
ОтделкаЧерновая отделка
СанузелСовмещенный
БалконБалкон
КладовкаНет
ЛифтДа
Изолированные комнатыДа
Онлайн показДа



