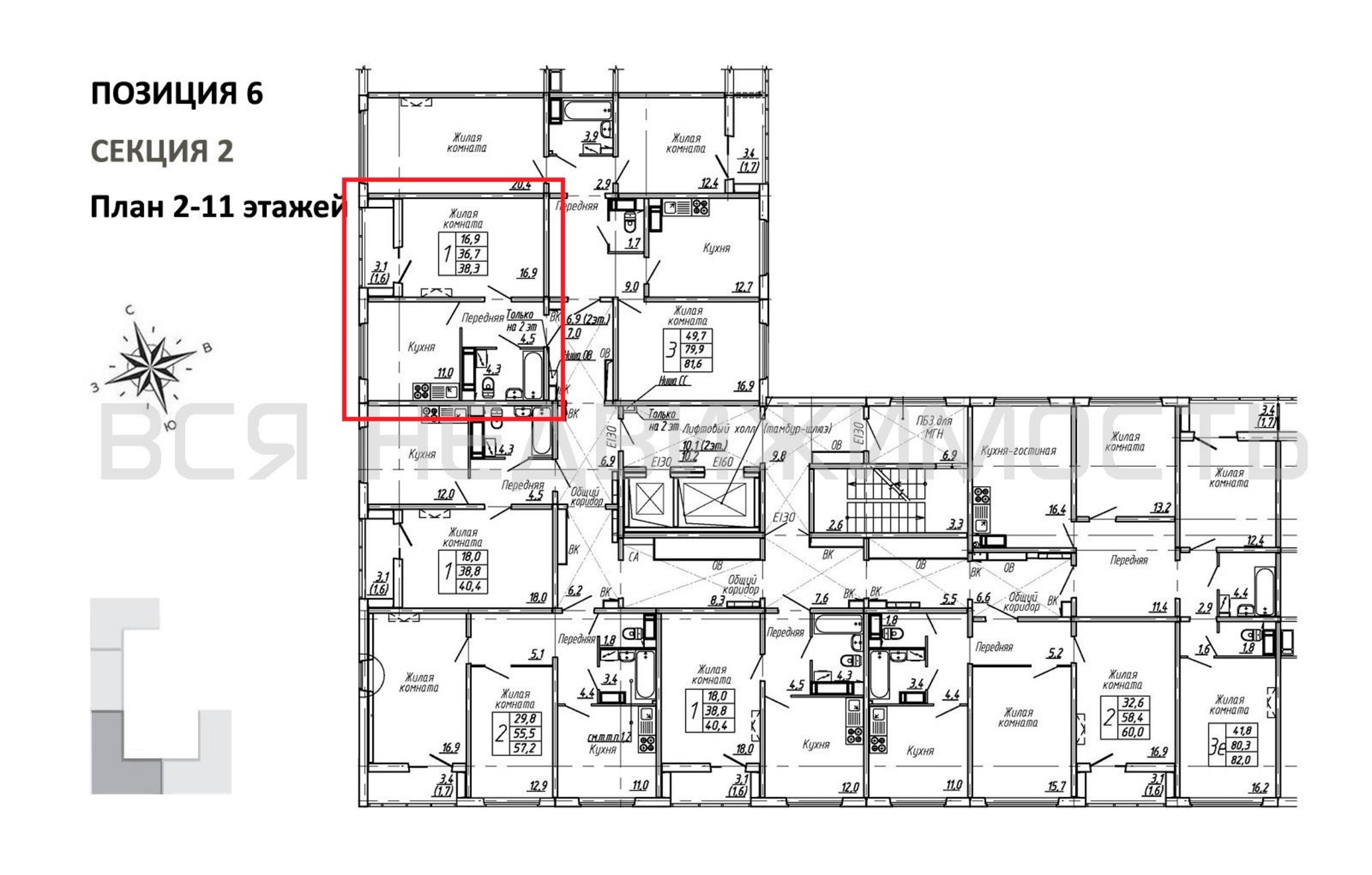
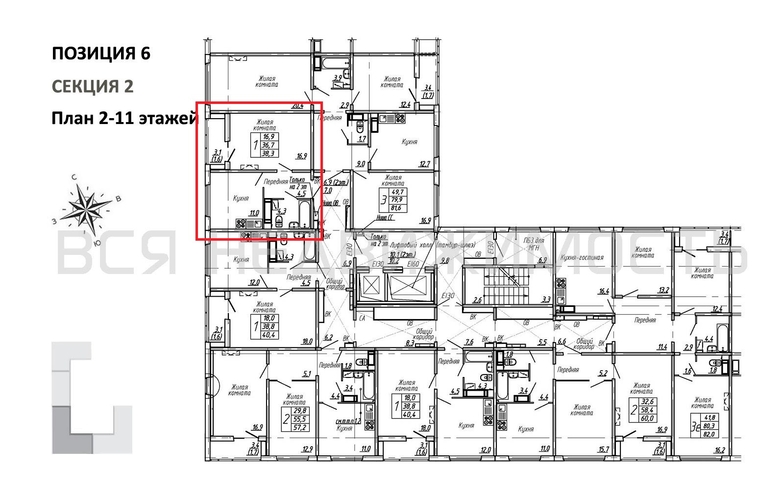
1-комнатная квартира, 38.30 м² 11/15 этаж ID объекта 100122357
Воронеж, Ленинградская ул., д. 27
Инфраструктура поблизости
Цена за наличные:
6 104 030 ₽
166 322 ₽/м²
Базовая цена:
7 085 500 ₽
Семейная ипотека
от 29 277 ₽/мес
Ипотека
от 71 400 ₽/мес
? Расчет цены приблизительный, за более точной информацией обращайтесь к менеджеру
КорпусПозиция 6
Срок сдачи1 кв 2027
Тип домаПанельный
Этаж11/15
№ Квартиры153
Тип сделкиПервичная продажа
Общая площадь36.70 м²
Строительная площадь38.30 м²
Жилая площадь16.90 м²
Площадь кухни11.00 м²
Высота потолков2.80 м
ОтделкаЧистовая отделка
Покрытие полаЛаминат
СанузелСовмещенный
КладовкаНет
ЛифтДа
Изолированные комнатыДа
Онлайн показДа



