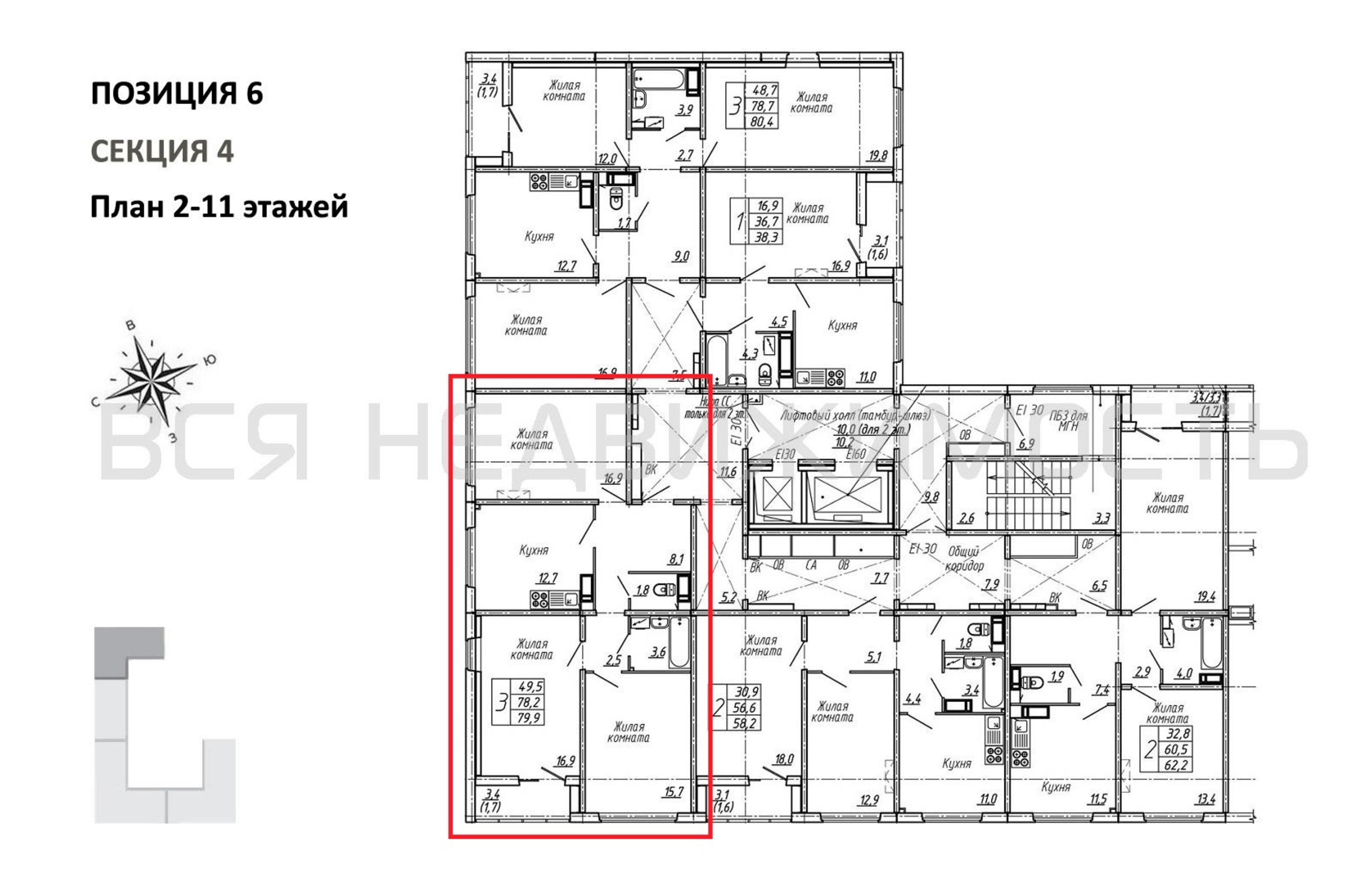
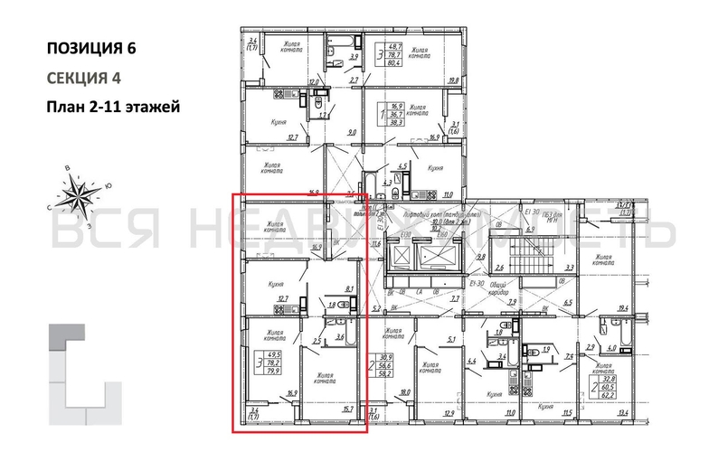
3-комнатная квартира, 79.90 м² 3/13 этаж ID объекта 100122444
Воронеж, Ленинградская ул., д. 27
Инфраструктура поблизости
Цена за наличные:
10 664 605 ₽
136 376 ₽/м²
Базовая цена:
12 388 494 ₽
Семейная ипотека
от 51 152 ₽/мес
Ипотека
от 124 745 ₽/мес
? Расчет цены приблизительный, за более точной информацией обращайтесь к менеджеру
КорпусПозиция 6
Срок сдачи1 кв 2027
Тип домаПанельный
Этаж3/13
№ Квартиры240
Тип сделкиПервичная продажа
Общая площадь78.20 м²
Строительная площадь79.90 м²
Жилая площадь49.50 м²
Площадь кухни12.70 м²
Высота потолков2.80 м
ОтделкаЧистовая отделка
Покрытие полаЛаминат
СанузелРаздельный
КладовкаНет
ЛифтДа
Изолированные комнатыДа
Онлайн показДа



