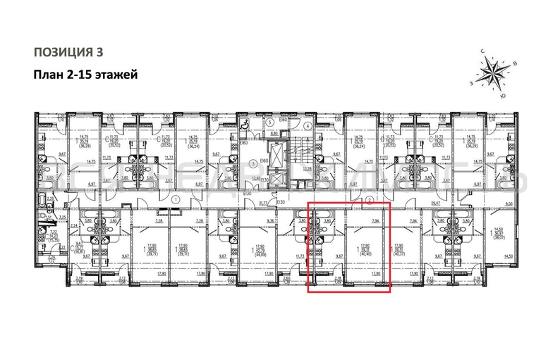
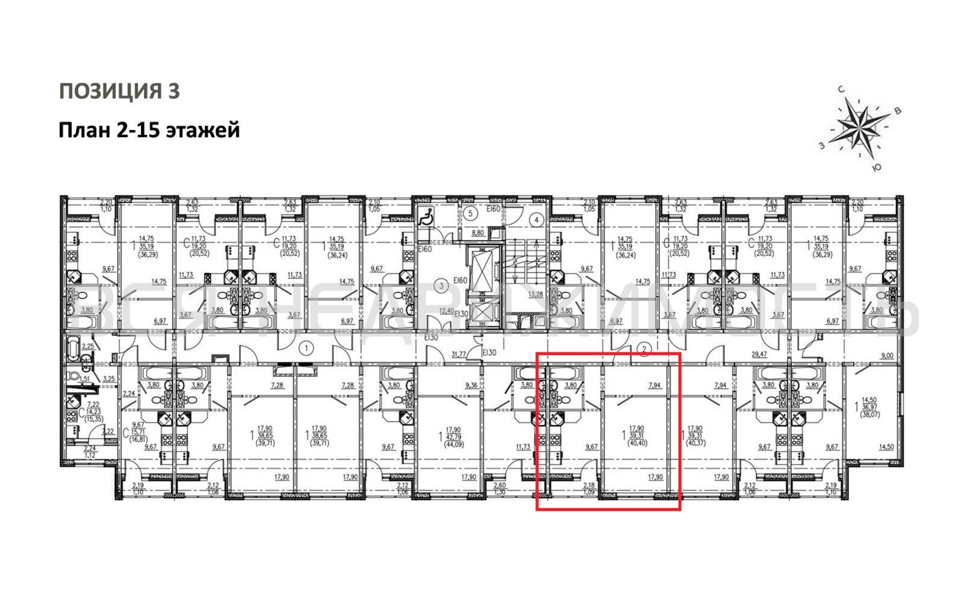
1-комнатная квартира, 40.40 м² 5/15 этаж ID объекта 100060025
Воронеж, Ростовская ул., д. 18а к.1
Инфраструктура поблизости
График стоимости
Базовая цена:
4 582 000 ₽
116 561 ₽/м²
Семейная ипотека
от 21 977 ₽/мес
Ипотека
от 53 596 ₽/мес
? Расчет цены приблизительный, за более точной информацией обращайтесь к менеджеру
Тип сделкиПервичная продажа
Общая площадь39.31 м²
Строительная площадь40.40 м²
Жилая площадь17.90 м²
Площадь кухни9.67 м²
Высота потолков2.80 м
ОтделкаЧерновая отделка
СанузелСовмещенный
КладовкаНет
ЛифтДа
Изолированные комнатыДа
Онлайн показДа



